✅ Нова луксозна сграда; разсрочено плащане.
✅ Фиксирани цени до АКТ 16.
✅ Изложение: Югоизток.
✅ Среден етаж. Среден апартамент.
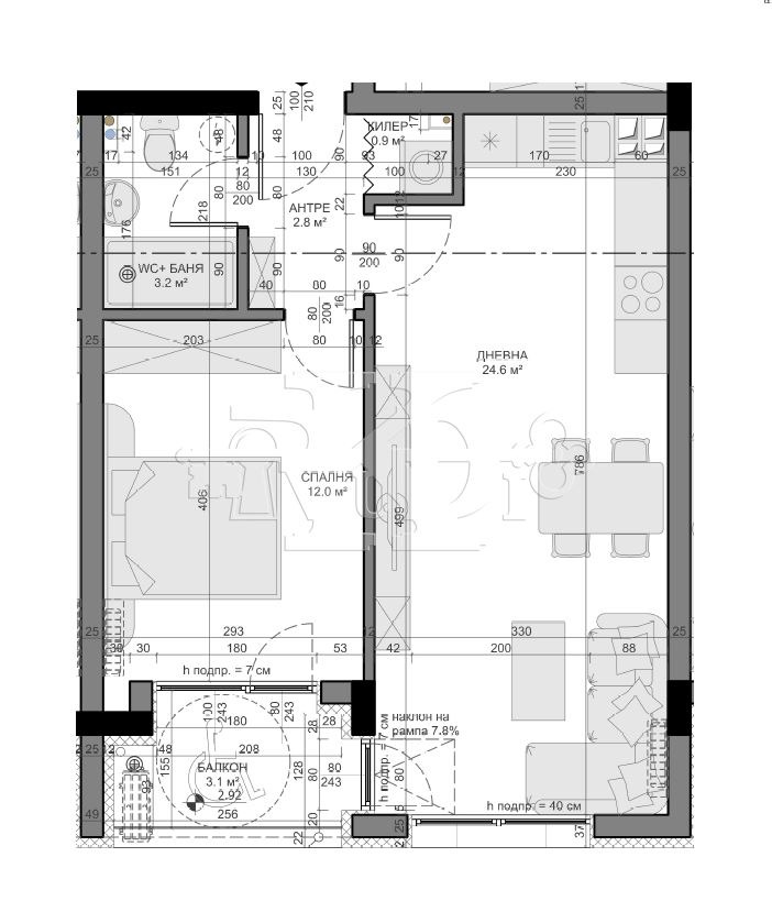
Представяме Ви двустаен апартамент, находящ се в нова тухлена сграда с асансьор.
Състои се от антре, всекидневна, спалня, баня с тоалетна, килер и балокн.
Възможност за покупка на паркомясто.
Сградата ще бъде нискоетажна и предлага двустайни и тристайни апартаменти с различни типове разпределения и квадратури.
Апартаментите ще бъдат завършени по БДС, като се предлага и довършване До ключ. Общите части са луксозни.
Сградата се намира в квартал с добре развита инфраструктура. В близост се намира СОУ 'Пейо Яворов', кметство Владиславово и на метри от спирка на градски транспорт. Бързият достъп до транспортни връзки осигурява удобна връзка с централните части на града.
За контакт и оглед - Брокер Недвижими Имоти: Дарин Щерев - 0877 86 66 23
'РУДИ КЕЙ': Компанията предлага всички необходими юридически и технически проверки на имота, както и възможностите за оптималната им реализация, организира всички етапи на сделка за покупко-продажба или наемни отношения до нейното финализиране с нотариално прехвърляне на имота. Съдейства за отпускане на банкови кредити при възможно най-добри условия за клиента. Компанията е регистрирана по ЗЗЛД като администратор на лични данни, което гарантира сигурността на клиентите. Ако проявявате интерес към тази оферта, необходима Ви е допълнителна информация, желаете да направите оглед на имота, оставаме на Ваше разположение за всякакви въпроси.
За контакт и оглед - Брокер Недвижими Имоти: Дарин Щерев - 0877 86 66 23
Виж всички обяви в rudikagents.bazar.bg или тук







