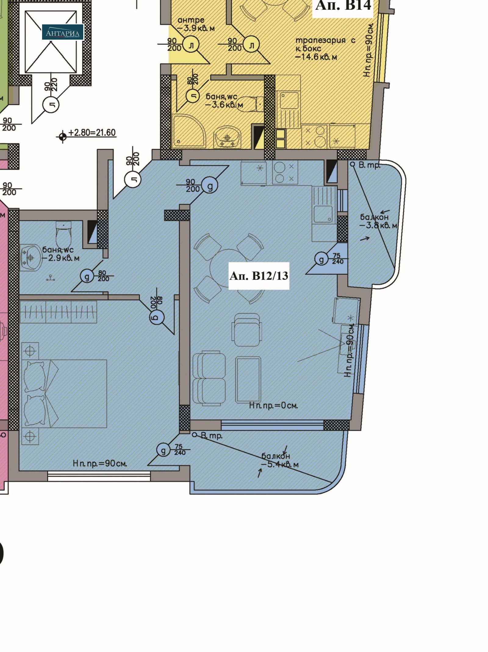
Без комисиона от купувача. Нова жилищна сграда, на минути пешеходно разстояние до централния плаж. Сградата е проектирана с четири жилищни етажа, един полуподземен етаж с гаражи и сутеренен етаж със складови помещения. В обявената цена апартаментите се предават без довършителни работи, в степен на завършеност - шпакловка и замазка. Има възможност, при допълнително заплащане, жилището да бъде завършено с подови настилки и поставени фаянс и теракота в банята. Апартамент Б12/13 е на втори (първи надпартерен) етаж, разпределението включва антре, дневна с кухненски бокс, спалня, баня с тоалетна и един балкон. Към апартамента има прилежащи две складови помещения. Срок за въвеждане на сградата в експлоатация: 05.2026г.
Местоположението на сградата прави ползавеното удобно през цялата година.
Референтен номер 1499







