НАПРЕДНАЛО СТРОИТЕЛСТВО !!! МОДЕРНА ВИЗИЯ !!! ПРЕД АКТ 14 !!! СТАТУТ АПАРТАМЕНТ!!!
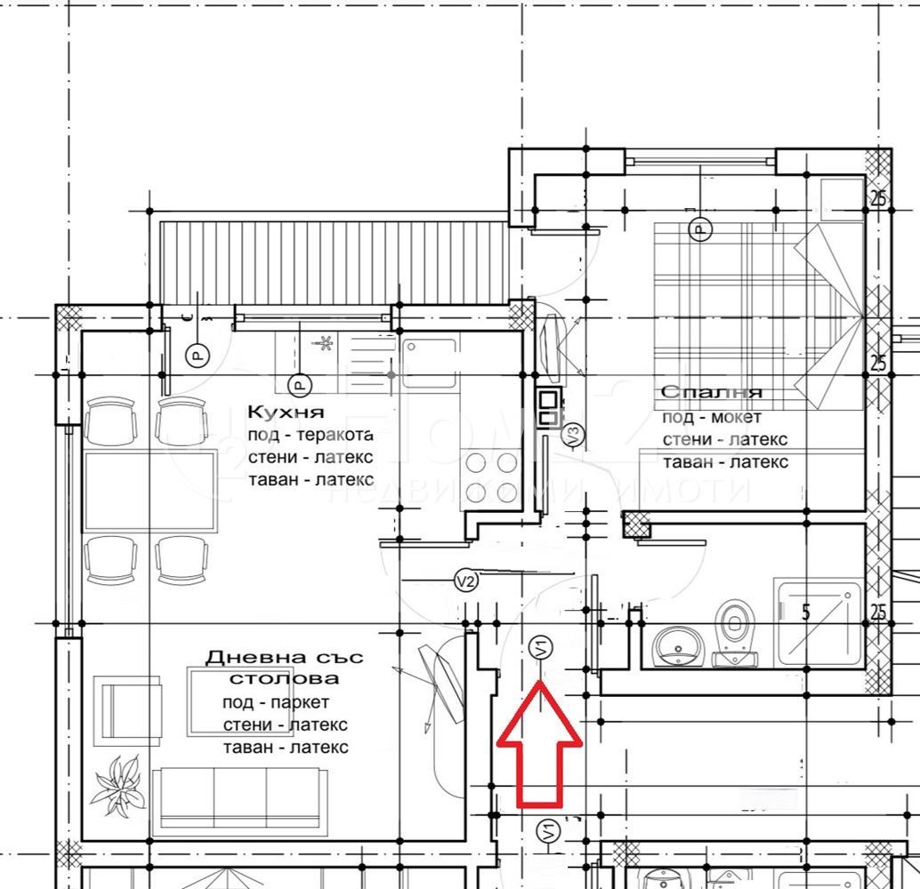
Home2U Ви представя двустаен апартамент със собствен двор във висококачествена сграда пред АКТ 14 . Апартаментът се намира в комплекс от 2 сгради с контрол на достъп, богато озеленяване, места за отдих и детска площадка. Апартамента e вътрешен с югоизточно изложение и е със следното функционално разпределение: входно антре, баня с тоалетна, спалня, дневна и двор облицован с естествен камък, за Ваше улеснение прилагаме схема на разпределение.
Локацията на имота дава възможност за отдаване под наем с висока доходност . Има възможност за закупуване на допълнително паркомясто или гараж. За повече информация или да запазите час за оглед, моля обадете се сега и цитирайте този код: 133150







