Апартаментът ще бъде завършен по БДС стандарт - на шпакловка и замазка. Апартаментът се продава без обзавеждане. Отоплението е на ток. Очакван срок на завършване декември 2026г.
Предлаганото жилище е част от луксозен жилищен комплекс в непосредствена близост до Университетска болница 'Света Марина'. Сградата е с иновативен, функционален и елегантен дизайн. Разположена в район с добър асфалтов достъп, тя предлага бърз и лесен достъп до основните градски артерии. При планирането на комплекса основно внимание е обърнато на удобството и безопасността на бъдещите жители. За сградата ще се използва стоманобетонова, гредова конструкция, укрепена с носещи колони, греди, шайби и здрави стоманобетонови плочи. Всеки елемент от проекта е избран с грижа за устойчивостта и дълготрайността на сградата, следвайки строгите национални стандарти. Код: 0708730
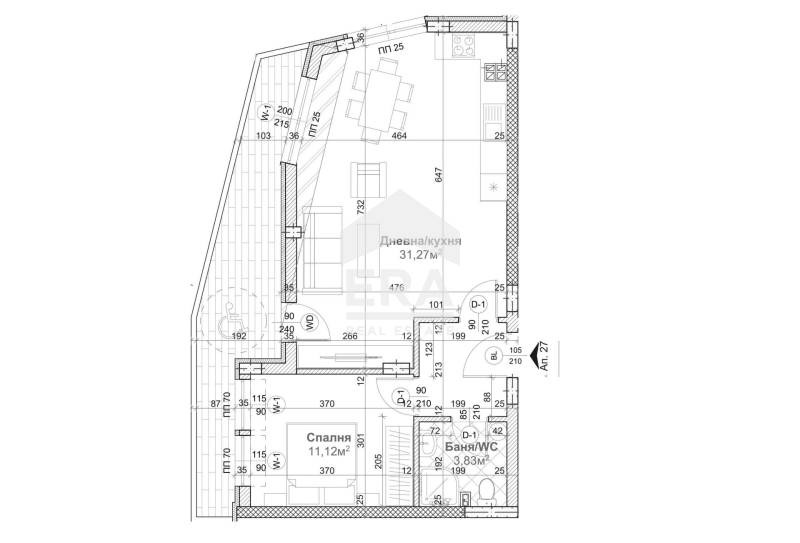
Оферта 0708730
Виж всички обяви в eralife.bazar.bg или тук
        
       
         
         
         
         
         
         
         
             
             
             
             
             
             
            






