? Реф. номер: 36308! ? БЕЗ КОМИСИОННА! ? ПРЕД АКТ 14! ? СУПЕР ЦЕНА!
? Агенция Авеню Риъл Естейт с голямо удоволствие Ви представя:
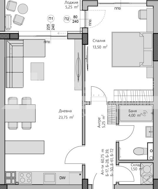
Двустаен апартамент в страхотен комплекс на Пещерско шосе до ул. Рая в кв. Смирненски, гр. Пловдив!
? Характеристики на сградата и апартамента:
Стилна и красива окачена вентилируема фасада с еталбонд
Отлична архитектура, удобни разпределения, луксозно завършени общи части
Окабеляване за станции за ел. автомобили и за технология 'Умен дом' и 'Умно осветление'
Комплексът ще разполага с озеленени площи, детски площадки, алейна мрежа с растителност и зони за отдих
Подготовка за термопомпа, контролиран достъп и Видеонаблюдение 24/7.
Перфектна локация: В близост до парк 'Отдих и култура', Мол Пловдив, детски градини, училища и обществен транспорт.
Монолитна стоманено-бетонна конструкция, енергийно ефективни тухли, висококачествена алуминиева дограма, топлоизолация с каменна вата
? Авеню Имоти Ви предлага:
Професионално кредитно посредничество чрез Credit Center при ипотека, потребителски кредит и рефинансиране!
УСЛУГАТА Е ИЗЦЯЛО БЕЗПЛАТНА!
ИЗГОТВЯНЕ НА НЯКОЛКО ОФЕРТИ ОТ ВОДЕЩИ БАНКИ!
НАЙ-ИЗГОДНИ УСЛОВИЯ СПРЯМО ВАШИЯ ПРОФИЛ!
НЕ Е НЕОБХОДИМО ДА СЕ РАЗКАРВАТЕ ВЪВ ВСЕКИ КЛОН НА РАЗЛИЧНИ БАНКИ!







