Локация: София, кв. Младост 4 📍
Година на строителство: 2007 г. 🧱
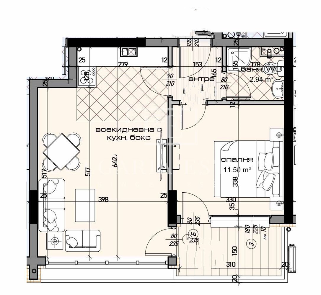
Разпределение и помещения:
Спалня уютна и тиха зона за отдих 🛏️
Всекидневна с кухненски бокс просторна и функционална дневна част 🛋️🍽️
Баня с тоалетна поддържано санитарно помещение 🚿🚻
Дрешник допълнително пространство за съхранение 🧥
Коридор удобно разпределение на достъп до всички стаи 🚪
Мазе практично допълнение за багаж и сезонни вещи 📦
Предимства на имота:
Отлично разпределение, без излишни преходи ✅
Светъл и комфортен дом, подходящ както за живеене, така и за инвестиция 💼
Качествено строителство от 2007 г., добра поддръжка на общите части 🧰
Подходящ за купувачи, търсещи модерно жилище с достатъчно пространство, комфорт и удобства. Готов за персонализиране според вашия вкус и стил. 🖼️
За квартала:
Младост 4 предлага развита инфраструктура, бърз достъп до офиси, търговски обекти и услуги; в близост е и метростанция, осигуряваща удобна връзка с центъра. 🚇🛍️
Зелени площи, детски площадки и спокойни вътрешни улици допринасят за приятна градска среда и семейна атмосфера. 🌳👨👩👧👦
Свържете се за оглед и допълнителна информация вашият нов дом ви очаква! 📞🏡
реф.ном. 113327
Виж всички обяви в ngconsult2021.bazar.bg или тук
        
       
         
            






