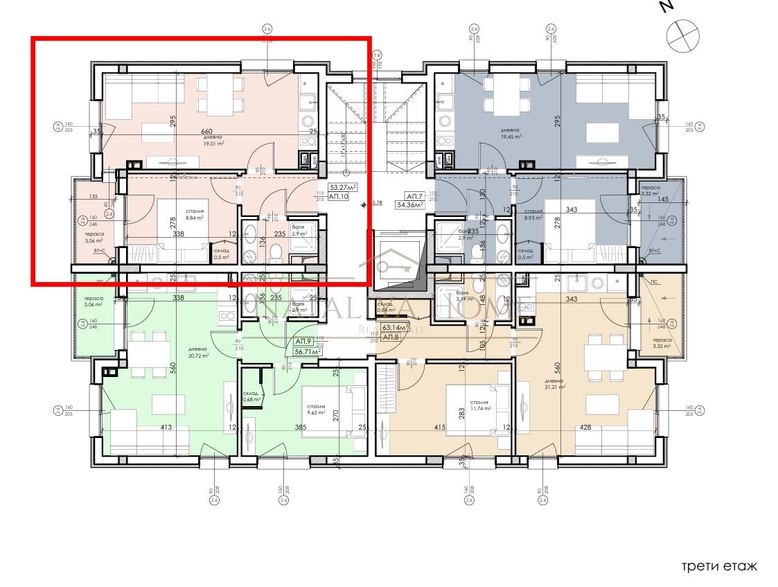
Апартментът е с площ 53,27 кв.м., разположен на трети етаж. Жилището е с функционално разпределение просторна всекидневна с кухненски бокс и трапезария, уютна спалня, баня с тоалетна и тераса. Апартаментът се продава на тапа, с възможност довършване до ключ, с изградена инсталация за термопомпа, осигуряваща възможност за икономично отопление и охлаждане. В цената е включено собствено паркомясто.
Сградата ще бъде изпълнена с висококачествени материали, с внимание към детайла и съвременни стандарти на строителство, гарантиращи дълготрайност и комфорт.
Район Мисаря се отличава с тишина, зелени площи и ниско застрояване, като същевременно е в близост до централната част на Созопол и плажовете. Локацията предлага спокойна жилищна среда, далеч от туристическия шум, но с бърз достъп до търговски обекти, заведения и основни пътни връзки.
Созопол е един от най-старите и живописни градове по Южното Черноморие, съчетаващ богато историческо наследство с модерни удобства. Намира се на 35 километра от Бургас и на 45 километра от летището. Известен е със своя стар град с калдъръмени улички, архитектурни забележителности и уютни ресторанти, както и с чистите си плажове и развитата инфраструктура. Градът предлага отлични условия както за целогодишно живеене, така и за ваканционен отдих.
Начало на строителство: октомври 2025 година, край на строителство: начало на 2027 година.
Съдействаме за банков кредит.
Виж всички обяви в nataliyahome.bazar.bg или тук
        
       
         
         
         
         
         
             
             
             
             
            






