🏡 Нова Жилищна Сграда в Строеж в кв. Освобождение, гр. Благоевград Модерен Дом в Спокойна Среда
Представяме ви елегантна жилищна сграда, съчетаваща функционално разпределение, модерна архитектура и хармония със заобикалящата среда.
✔️ Налични двустайни и тристайни апартаменти;
✔️ Партерни жилища със собствен двор;
✔️ Апартаменти на последен етаж с озеленени тераси простор и зеленина с усещане за къща над града;
✔️ Възможност за покупка на паркомясто в подземният гараж на сградата цена 10000 евро;
Специално предложение
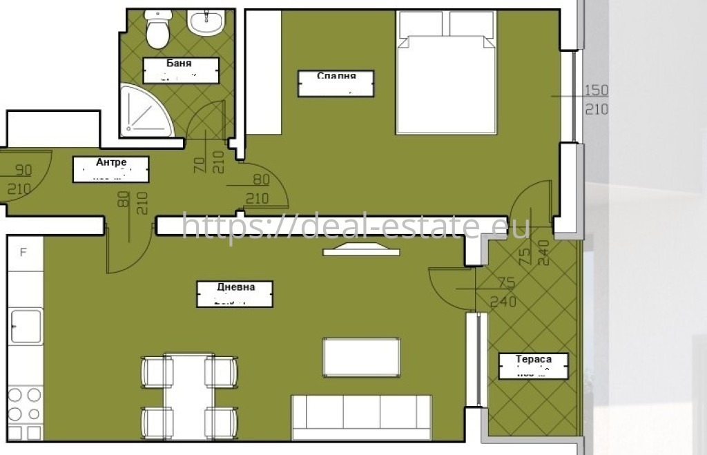
Двустаен апартамент:
Застроена площ: 69,48 кв.м.
Разпределение: входно антре, дневна с кухненски бокс, спалня, санитарен възел и тераса.
Финансови условия:
Само 20% първоначална вноска
Гъвкави схеми на изплащане, съобразени с етапите на строителство
Срокове и сигурност:
Въвеждане в експлоатация 2027 г.
📞 Изберете своя нов дом още сега в модерна среда, с функционални пространства и гаранция за надеждност.
Обява 1271.







