БИЛДИНГ БОКС предлага за продажба двустаен апартамент в новострояща се жилищна сграда.
ЛОКАЦИЯ: Жилищната сграда се намира в кв. Владиславово. Локация с бърз достъп до главен булевард, спирки на градски транспорт, търговски обекти, медицински центрове.
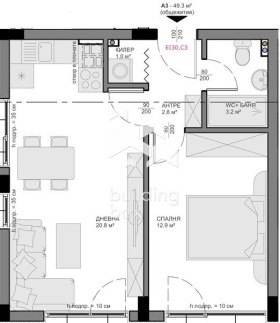
РАЗПРЕДЕЛЕНИЕ: Всекидневна с кухненски бокс с площ от 20.80 кв.м., спалня - 12.90 кв.м., антре, баня и тоалетна, килер.
ЕТАЖНОСТ: Етаж 1 от 5
ИЗЛОЖЕНИЕ: Юг/Изток
ОТОПЛЕНИЕ: Електричество
ПАРКИРАНЕ: Налични подземни паркоместа, гаражи, както и външни паркоместа, които могат да бъдат закупени допълнително.
ЕТАП НА СТРОИТЕЛСТВО: Пред разрешение за строеж
СГРАДА: Сградата е проектирана на 5 жилищни етажа, с общо 42 апартамента и 2 офиса. Апартаментите разполагат с функционални разпределения.
ИНВЕСТИТОР: Инвеститор с дългогодишен опит и утвърден в сферата на жилищно, промищлено строителство, както и в ремонти на сгради и съоръжения.
Билдинг Бокс предоставя безплатна консултация и съдействие при финансиране на избрания от Вас имот.
Оферта 24792
Виж всички обяви в buildingbox.bazar.bg или тук







