НОВО СТРОИТЕЛСТВО В МАЛИНОВА ДОЛИНА!!! БУТИКОВА СГРАДА С ВИСОКОКАЧЕСТВЕНИ МАТЕРИАЛИ!!! АПАРТАМЕНТ С ДВОР!!! ЮЖНО ИЗЛОЖЕНИЕ !!!
Представяме ви двустаен апартамент в новострояща се бутикова сграда с малко на брой апартаменти, разположена в тих и зелен район на кв. Малинова долина отличен избор както за живеене, така и за инвестиция!
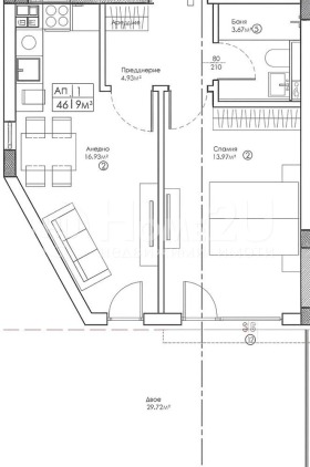
Апартаментът се състои от:
Хол с кухненски бокс
Отделна спалня
Баня с тоалетна
Просторен собствен двор
КАЧЕСТВО БЕЗ КОМПРОМИС:
Хидроизолация VJF на General Membrane
Топлоизолация Baumit
Дограма Salamander отлична шумо- и топлоизолация
Асансьор ORONA модерен, безшумен и енергийно ефективен
Общи части с естествен камък лукс и дълготрайност
Локацията предлага бърз достъп до Околовръстен път, Студентски град, бъдеща метростанция, магазини и училища, като същевременно осигурява тишина и спокойствие.
Очакваме Ви за оглед и повече информация относно срокове на завършване и схеми на плащане!
Обадете се сега и цитирайте следния код: 133079







