АРТЕМИС ЕСТЕЙТ ви представя двустаен апартамент в ж.к. Зона Б-5.
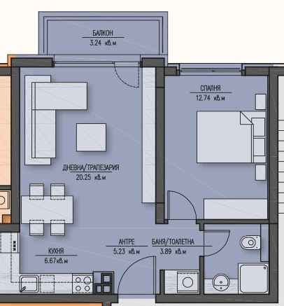
Имотът разполага с площ от 75 кв.м / входно антре, вскидневна с кухненски бокс, спалня, баня с тоалетна, склад и балкон. Намира се на пети етаж.
Новострояща се бутикова жилищна сграда разположена в централната част на града, предлагаща свободни тристайни и двустайни апартаменти с възможност за покупка на паркомясто или гараж.
Сградата се намира в близост до парк Възраждане и на пешеходно разстояние от търговски център Mall of Sofia . Районът е спокоен и комуникативен. Локацията е предпочитана, защото предлага удобства и бърз достъп до всяка една дестинация на града. В близост до жилището също така ще откриете: хранителни магазини, търговски обекти, спирки на градски транспорт, банкови клонове, заведения, зони за спорт и др.
При интерес се свържете се с нас на телефона посочен в обявата, като ще ви бъде необходим референтен номер на имота: 40122.
За нашите клиенти сме подготвили:
* богато портфолио от различни имоти в различни райони;
* консултация със специалист недвижими имоти;
* консултация с юрист свързана с подготовка на всички необходими документи;
* консултация с кредитен консултант;
* различни оферти за ипотечен или потребителски кредит;







