Революшън Естейт Ви представя двустаен апартамент в затворен комплекс С АКТ 14 в ж.к. Малинова долина.
Локация: В непосредствена близост до бул. Св. Климент Охридски и Спортен комплекс на НСА.
Имотът е разположен на партерен етаж.
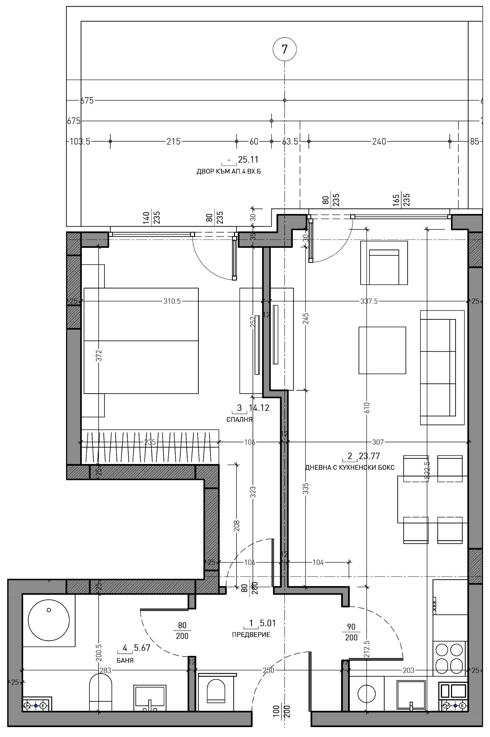
Площ РЗП 66.70 кв.м. // ЗП 56.25 кв.м.
Разпределение: входно антре, всекидневна с кухненски бокс, спалня, баня с тоалетна и двор - 25.11 кв.м.
Изложение: Запад.
Степен на завършеност: АКТ 14;
Очаквано завършване: лятото 2026г.
За повече информация не се колебайте да се свържете с нас и да цитирате референтен номер: 11731 в сграда с ID: 676.







