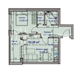
Разпределение:
✔Антре
✔Светла всекидневна с кухненски бокс
✔Спалня
✔Санитарен възел
✔Тераса с невероятна панорамна гледка
Локация:
Комуникативна и добре уредена градска среда, предлагаща всичко необходимо за комфортен живот множество автобусни и тролейбусни линии с бърз достъп до центъра и ключови точки на града, в близост до училища и детски градини, разнообразни супермаркети, магазини и услуги. Районът разполага с зелени площи, зони за отдих и отлична инфраструктура, което го прави подходящ както за семейства, така и за активни млади хора.
За сградата:
Обектът се състои от четири тела, всяко със самостоятелен вход и различна етажност. За нормалното обслужване на живущите в по-големите тела са предвидени по 2 и 3 асансьора.
Паркинг:
Подсигурено е паркирането на 486 автомобила в закрити подземни паркинги на кота -3.80 и кота 0.00, отворен паркинг на кота +2.90, частично покрит от сградите над него, и открит външен паркинг.
Фирма изпълнител:
Обектът ще бъде изпълнен от строителна компания с дългогодишен опит, доказала се с качествено и надеждно строителство на мащабни проекти.
💲👌Офертна цена:123600
Виж всички обяви в vivahome.bazar.bg или тук
        
       
         
         
         
         
         
         
         
         
         
         
         
         
         
             
             
             
             
             
             
             
             
             
             
             
             
            






