Translations in other languages:
All real estate ads published on
imot.bg
have been translated into English and published on the partner site
Continue
Получихте нова обява по филтър
Промяна на цена на наблюдавана обява
стара цена
нова цена
Сайт за имоти
№1
ДОБАВИ ОБЯВА
Редакция на обява
Вход
|
Нова Регистрация
Начало
Публикуване
Търсене
Нови сгради
Агенции
Новини
Кредити
+ Още...
Моят имот
Избор на рубрика
|
Продава
|
Дава под наем
|
Купува
|
Търси да наеме
|
Заменя
|
Съквартиранти
Колко струва моят имот?
НОВО ТЪРСЕНЕ
|
КОРЕКЦИЯ НА ТЪРСЕНЕТО
|
РЕЗУЛТАТИ ОТ ТЪРСЕНЕТО
Увеличи
1
/
1
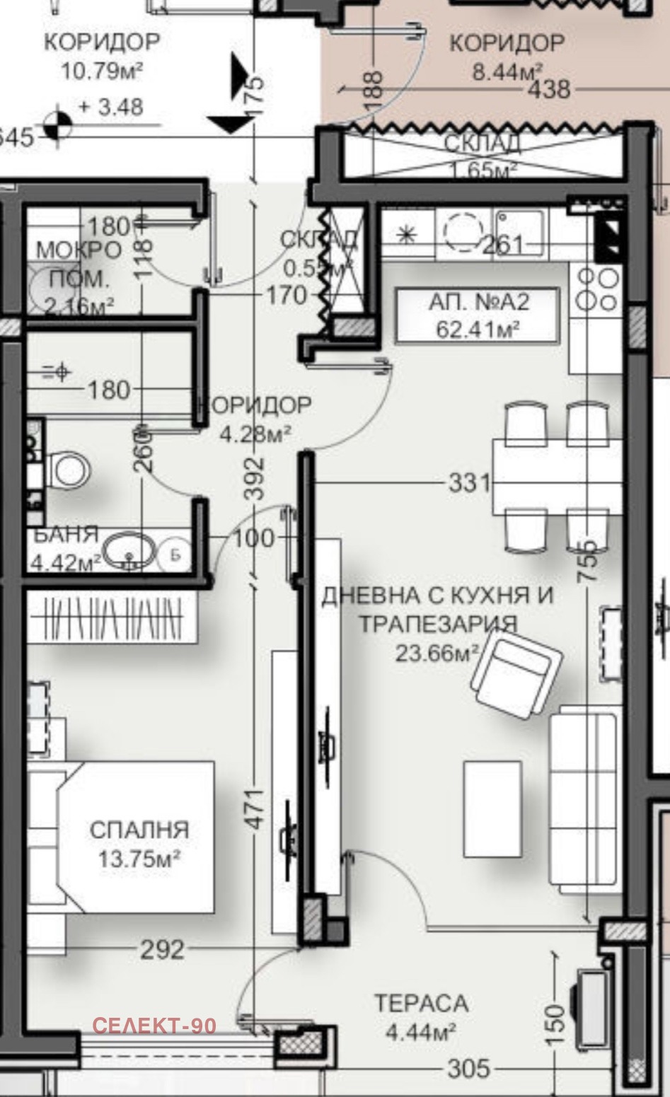
99 900 €/195 387.42 лв., Продава 2-СТАЕН, град Перник, Изток
Площ: 74 кв.м, Агенция, Етаж: 1-ви от 5, Газ: НЕ, ТEЦ: ДА, Тухла, Ще бъде въведен в експлоатация 2026 г.,
Продава 2-СТАЕН
град Перник, Изток
Виж карта
99 900 €
195 387.42 лв.
(1 350 €, 2 640.37 лв./m
2
)
Цената е с включено ДДС
Публикувана в 21:47 на 13 август, 2025 год.
Обявата е посетена
652
пъти.
Площ:
74 m
2
Етаж:
1-ви от 5
Газ:
НЕ
ТEЦ:
ДА
Строителство:
Тухла,
Ще бъде въведен в експлоатация
2026 г.
Напиши Бележка
Дай оценка
Съобщи за нередност
10:23 ч., 02.10.2025
Изтрий
Редактирай
Отказ
Запиши
Оценка: от 10
10:23 ч., 02.10.2025
(Ще получите SMS с ключ за верификация)
Съгласявам се с
общите условия
и
политики за защита на личните данни
Изпрати
Описание на имота:
Продава се двустаен апартамент във нова модерна и съвременна сграда. Сградата е със Акт 14 предстои Акт 15 -2026г. Голямо парково пространство пред блока,ще бъде изградена нова модерна детска площадка! Възможност за закупуване на подземни паркоместа при цена от 14500 с площ около 20 кв.м за повече информация тел 0885712440 Без комисионна от купувача!
Виж всички обяви на агенцията в
selekt90.bazar.bg
или
тук
.
Особености:
• Тухла
• Асансьор
• С гараж
• С паркинг
• Интернет връзка
• Контрол на достъпа
• Охрана
• Саниран
• Възможност за дан. кредит
За контакти:
0885712440
Този имот се предлага само на частни лица
Агенция: СЕЛЕКТ-90
http://selekt90.imot.bg
Още оферти:
продава
|
дава под наем
|
купува
|
наема
Адрес: област Перник, гр. Перник, ул.'Раковска' 1
Тел.: 0885712440
Изпрати запитване:
Вашето съобщение (до 1000 символа
):
Вашето име:
Вашия мобилен телефон:
Вашия E-mail:
Изпрати Е-mail
Съгласявам се с
общите условия
и
политики за защита на личните данни
Продава 2-СТАЕН
град Перник, Изток
Обява: 1b175511087563654
99 900 €
195 387.42 лв.
(1 350 €, 2 640.37 лв./m
2
)
Цената е с включено ДДС
0885712440
Изпрати E-mail на продавача
ЗАПАЗИ ОБЯВАТА
Сподели:
СЕЛЕКТ-90
област Перник, гр. Перник, ул.'Раковска' 1
В imot.bg
от 2015 г.
Виж всички имоти на агенцията
Местоположение:
град Перник, Изток
Допълнителни данни за имотите в района и сравнение с други райони:
Търсене в АРХИВ 2013 - 2025 г.
Изберете вида на имота и района
Вид на имота:
Област / Град:
Район:
1
1-СТАЕН
2-СТАЕН
3-СТАЕН
4-СТАЕН
МНОГОСТАЕН
МЕЗОНЕТ
ОФИС
АТЕЛИЕ, ТАВАН
ЕТАЖ ОТ КЪЩА
КЪЩА
ВИЛА
МАГАЗИН
ЗАВЕДЕНИЕ
СКЛАД
ГАРАЖ, ПАРКОМЯСТО
ПРОМ. ПОМЕЩЕНИЕ
ХОТЕЛ
ПАРЦЕЛ
ЗЕМЕДЕЛСКА ЗЕМЯ
БИЗНЕС ИМОТ
град Благоевград
град Бургас
град Варна
град Велико Търново
град Видин
град Враца
град Габрово
град Добрич
град Кърджали
град Кюстендил
град Ловеч
град Монтана
град Пазарджик
град Перник
град Плевен
град Пловдив
град Разград
град Русе
град Силистра
град Сливен
град Смолян
град София
град Стара Загора
град Търговище
град Хасково
град Шумен
град Ямбол
Байкушева махала
Бела вода
Бели брег
Варош
Васил Левски
Димова махала
Драгановец
Захаринова махала
Изток
Илчова махала
Калкас
Каменина
Клепало
Кошаревска махала
Красно село
Кристал
Куциян
Ладовица
Мацова махала
Могиличе
Монте Карло
Мошино
Нов Драгановец
Парлева махала
Пригаров район
Промишлена зона
Проучване
Радина чешма
Ралица
Рено
Рудничар
Селото
Стара Тева
Табана
Твърди ливади
Тева
Христо Ботев
Христо Смирненски
Хумни дол
Център
Църква
Чишкарева махала
Шумачка махала
2
1-СТАЕН
2-СТАЕН
3-СТАЕН
4-СТАЕН
МНОГОСТАЕН
МЕЗОНЕТ
ОФИС
АТЕЛИЕ, ТАВАН
ЕТАЖ ОТ КЪЩА
КЪЩА
ВИЛА
МАГАЗИН
ЗАВЕДЕНИЕ
СКЛАД
ГАРАЖ, ПАРКОМЯСТО
ПРОМ. ПОМЕЩЕНИЕ
ХОТЕЛ
ПАРЦЕЛ
ЗЕМЕДЕЛСКА ЗЕМЯ
БИЗНЕС ИМОТ
град Благоевград
град Бургас
град Варна
град Велико Търново
град Видин
град Враца
град Габрово
град Добрич
град Кърджали
град Кюстендил
град Ловеч
град Монтана
град Пазарджик
град Перник
град Плевен
град Пловдив
град Разград
град Русе
град Силистра
град Сливен
град Смолян
град София
град Стара Загора
град Търговище
град Хасково
град Шумен
град Ямбол
Байкушева махала
Бела вода
Бели брег
Варош
Васил Левски
Димова махала
Драгановец
Захаринова махала
Изток
Илчова махала
Калкас
Каменина
Клепало
Кошаревска махала
Красно село
Кристал
Куциян
Ладовица
Мацова махала
Могиличе
Монте Карло
Мошино
Нов Драгановец
Парлева махала
Пригаров район
Промишлена зона
Проучване
Радина чешма
Ралица
Рено
Рудничар
Селото
Стара Тева
Табана
Твърди ливади
Тева
Христо Ботев
Христо Смирненски
Хумни дол
Център
Църква
Чишкарева махала
Шумачка махала
3
1-СТАЕН
2-СТАЕН
3-СТАЕН
4-СТАЕН
МНОГОСТАЕН
МЕЗОНЕТ
ОФИС
АТЕЛИЕ, ТАВАН
ЕТАЖ ОТ КЪЩА
КЪЩА
ВИЛА
МАГАЗИН
ЗАВЕДЕНИЕ
СКЛАД
ГАРАЖ, ПАРКОМЯСТО
ПРОМ. ПОМЕЩЕНИЕ
ХОТЕЛ
ПАРЦЕЛ
ЗЕМЕДЕЛСКА ЗЕМЯ
БИЗНЕС ИМОТ
град Благоевград
град Бургас
град Варна
град Велико Търново
град Видин
град Враца
град Габрово
град Добрич
град Кърджали
град Кюстендил
град Ловеч
град Монтана
град Пазарджик
град Перник
град Плевен
град Пловдив
град Разград
град Русе
град Силистра
град Сливен
град Смолян
град София
град Стара Загора
град Търговище
град Хасково
град Шумен
град Ямбол
Байкушева махала
Бела вода
Бели брег
Варош
Васил Левски
Димова махала
Драгановец
Захаринова махала
Изток
Илчова махала
Калкас
Каменина
Клепало
Кошаревска махала
Красно село
Кристал
Куциян
Ладовица
Мацова махала
Могиличе
Монте Карло
Мошино
Нов Драгановец
Парлева махала
Пригаров район
Промишлена зона
Проучване
Радина чешма
Ралица
Рено
Рудничар
Селото
Стара Тева
Табана
Твърди ливади
Тева
Христо Ботев
Христо Смирненски
Хумни дол
Център
Църква
Чишкарева махала
Шумачка махала
4
1-СТАЕН
2-СТАЕН
3-СТАЕН
4-СТАЕН
МНОГОСТАЕН
МЕЗОНЕТ
ОФИС
АТЕЛИЕ, ТАВАН
ЕТАЖ ОТ КЪЩА
КЪЩА
ВИЛА
МАГАЗИН
ЗАВЕДЕНИЕ
СКЛАД
ГАРАЖ, ПАРКОМЯСТО
ПРОМ. ПОМЕЩЕНИЕ
ХОТЕЛ
ПАРЦЕЛ
ЗЕМЕДЕЛСКА ЗЕМЯ
БИЗНЕС ИМОТ
град Благоевград
град Бургас
град Варна
град Велико Търново
град Видин
град Враца
град Габрово
град Добрич
град Кърджали
град Кюстендил
град Ловеч
град Монтана
град Пазарджик
град Перник
град Плевен
град Пловдив
град Разград
град Русе
град Силистра
град Сливен
град Смолян
град София
град Стара Загора
град Търговище
град Хасково
град Шумен
град Ямбол
Байкушева махала
Бела вода
Бели брег
Варош
Васил Левски
Димова махала
Драгановец
Захаринова махала
Изток
Илчова махала
Калкас
Каменина
Клепало
Кошаревска махала
Красно село
Кристал
Куциян
Ладовица
Мацова махала
Могиличе
Монте Карло
Мошино
Нов Драгановец
Парлева махала
Пригаров район
Промишлена зона
Проучване
Радина чешма
Ралица
Рено
Рудничар
Селото
Стара Тева
Табана
Твърди ливади
Тева
Христо Ботев
Христо Смирненски
Хумни дол
Център
Църква
Чишкарева махала
Шумачка махала
Откажи
OK
Цена на имота
Цена на кв.м.
Наем на имота
Цена/Год.наем
Брой оферти
Брой търсения
Разглеждания
1 месец
1 година
3 години
21 години
и 9 месеца
Добави/редактирай
вид имот и район
*Средните цени са определени чрез
медиана стойност
.
Виж още
имоти от Перник
или
още Двустайни Апартаменти в Перник
Още обяви в imot.bg от СЕЛЕКТ-90
Виж всички
Продава 2-СТАЕН
114 400 €
223 746.95 лв.
(88 кв.м)
град Перник Изток
Продава 2-СТАЕН
99 900 €
195 387.42 лв.
(74 кв.м)
град Перник Изток
Продава 3-СТАЕН
140 000 €
273 816.20 лв.
(112 кв.м)
град Перник Изток
Продава 3-СТАЕН
165 000 €
322 711.95 лв.
(132 кв.м)
град Перник Изток
КОНТАКТИ
|
SMS КОДОВЕ
|
СТАТИСТИКА
|
ПОМОЩ
|
ОБЩИ УСЛОВИЯ
|
РЕКЛАМА
|
ТОП ОФЕРТА
|
Въпроси и предложения към imot.bg
Резон Медия
|
Имоти
|
Автомобили
|
Работа
|
Новини
|
Обяви
|
Преводи и легализация
2002-2025 ® Copyright imot.bg
Следвайте ни в: