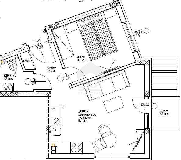
ЕКСКЛУЗИВНО! ЕРА Вива продава двустаен апартамент в новострояща се сграда с АКТ 14 в к.к. Чайка, гр. Варна. Имотът е със застроена площ от 42.80 кв.м. /54.62 кв.м. с общите части/ и се намира на четвърти от общо пет етажа. Състои се от входно антре, дневна с кухненски бокс, спалня, баня с тоалетна и балкон. Жилището се предлага в степен на завършеност по БДС, с поставена PVC дограма и външна блиндирана врата. За повече информация вж. раздел 'План'. Перфектен избор за целогодишно живеене или почивка, а също така отлична възможност за инвестиция и получаване на доход от недвижимия имот.
Mодерна и новострояща се сграда, която ще впечатли с изключителен стил и качество. Сградата ще разполага с асансьор и домофонна система за удобство и сигурност на живущите. Освен това, има възможност за закупуване на открито паркомясто. Използваните материали и технологии са съобразени с последните иновации в строителния бранш, гарантирайки устойчивост и енергийна ефективност. Възможност за закупуване на открито паркомясто за цена от 8 000 евро.
Отлично местоположение, до прекрасния плаж Кабакум. В близост се намират известните курорти Златни пясъци и Св. Св. Константин и Елена, Варненският свободен университет Черноризец храбър , Международният дом на журналистите, Специализираната болница за рехабилитация Термал , както и спортният комплекс НСБ Спортпалас . В района има много магазини, заведения и ателиета за услуги и малки хотели.
Оферта 1009571







