Предлагаме на Вашето внимание един от най-новите ни обекти, находящ се в ЖК ВЪЗРАЖДАНЕ IV, а именно -две жилищни сгради.
Всяка от тях разполага с полуподземен етаж със складове/ ателиета и 3 жилищни етажа.
Очакваме стартиране на обекта в края на лятото на 2025 г.
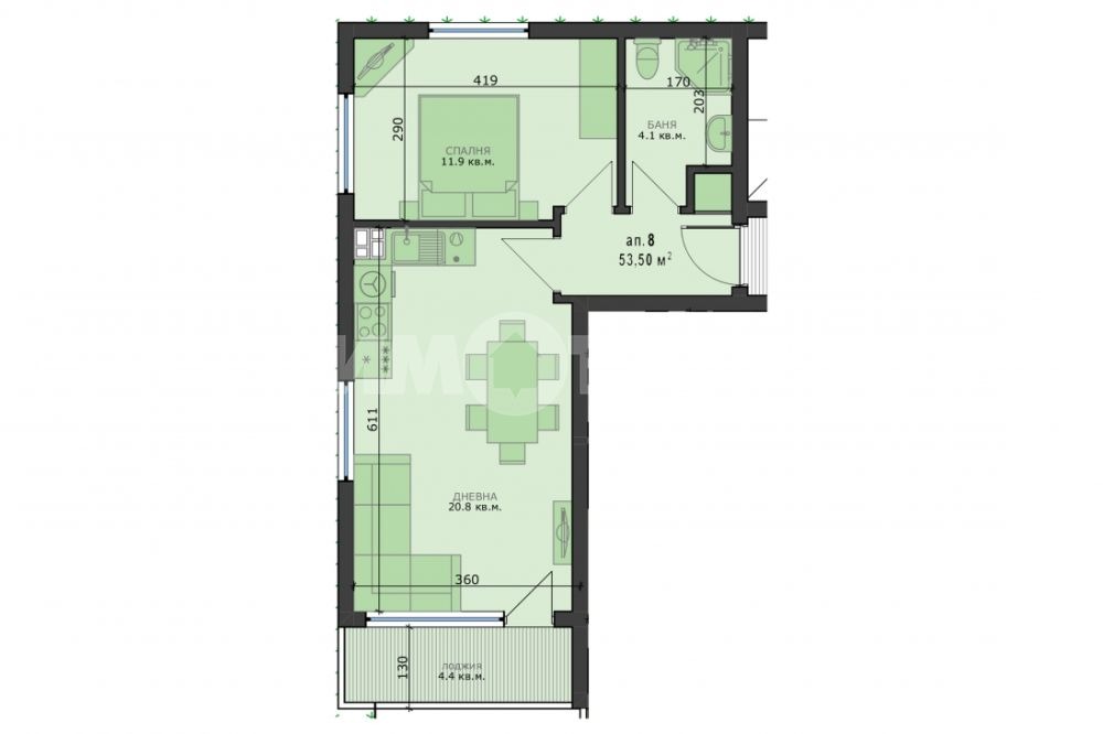
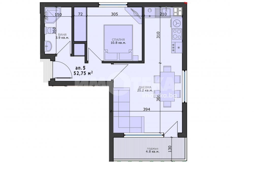
Ателие : 5
Етаж: 2
Ателие кв.м: 52,75
спални бр.: 1
общи части кв.м: 7,84
Сграда А разполага с подземен етаж с гаражи, а за сграда Б има предвидени 17 външни паркоместа.
Обади се сега и цитирай този код 651830







