Жилището ще се издава по БДС: под-циментова замазка, стени-шпакловка, ПВЦ дограма на прозорците. Блиндирана входна врата, монтирани ключове, контакти, фасунги. Отоплението ще е с електричество. Има възможност за закупуване на паркомясто.
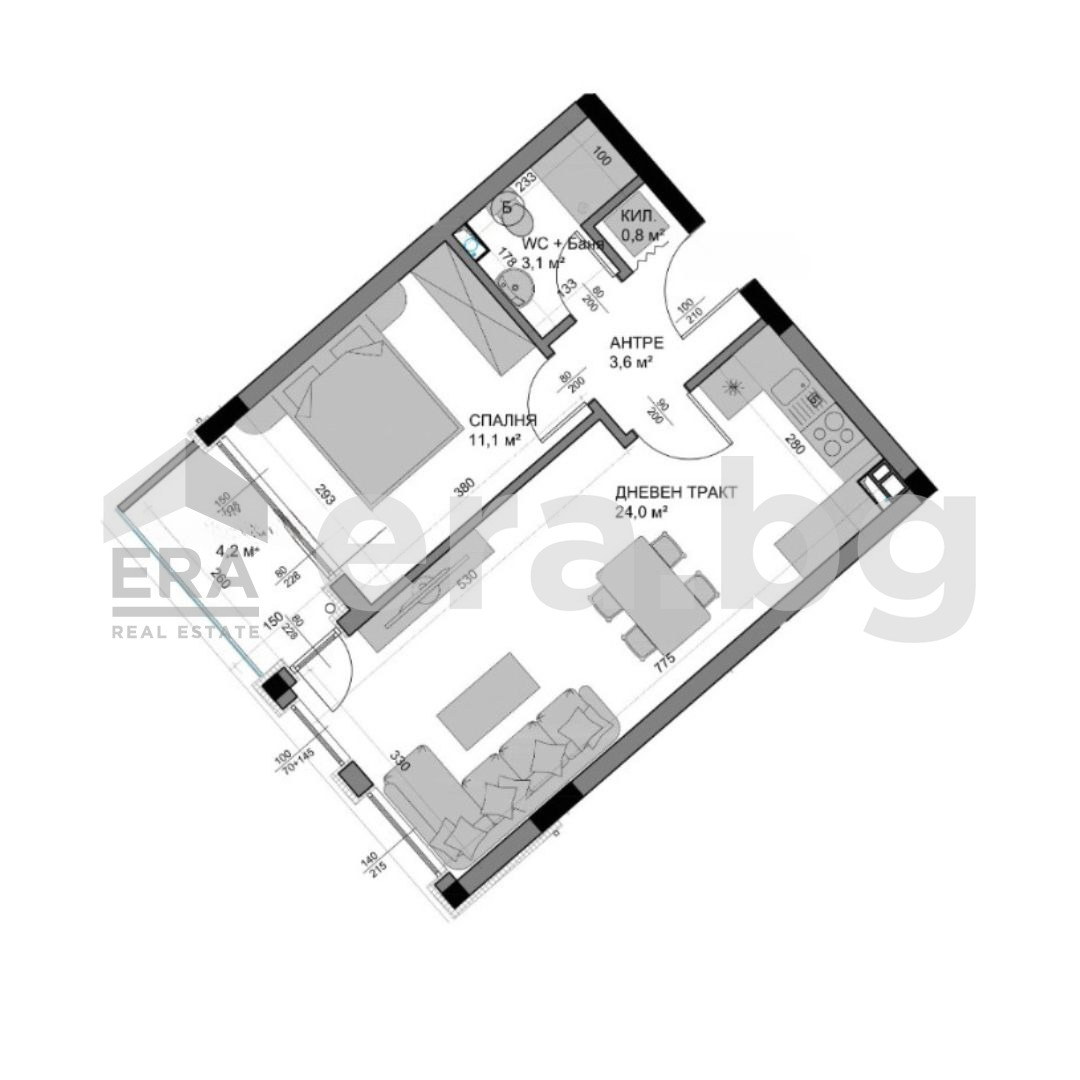
Предложеният за продажба двустаен апартамент ще бъде ситуиран в луксозен комплекс (без такса поддръжка), който ще се състои от две модерни сгради, които ще разполагат с подземен паркинг и удобен достъп. Пространството около комплекса ще включва пешеходни алеи, зелени площи и зони за отдих. Инвеститорът е с над 20години опит в строителството. В близост до хипермаркет, магазини, детски площадки, училища, детски градини, спирки на градски транспорт...
ЕРА е независим кредитен посредник към БНБ и предоставя безплатна консултация и съдействие при финансиране на избрания от Вас район... Код: 5301451
Виж всички обяви в eravizia.bazar.bg или тук
        
       
         
         
             
            






