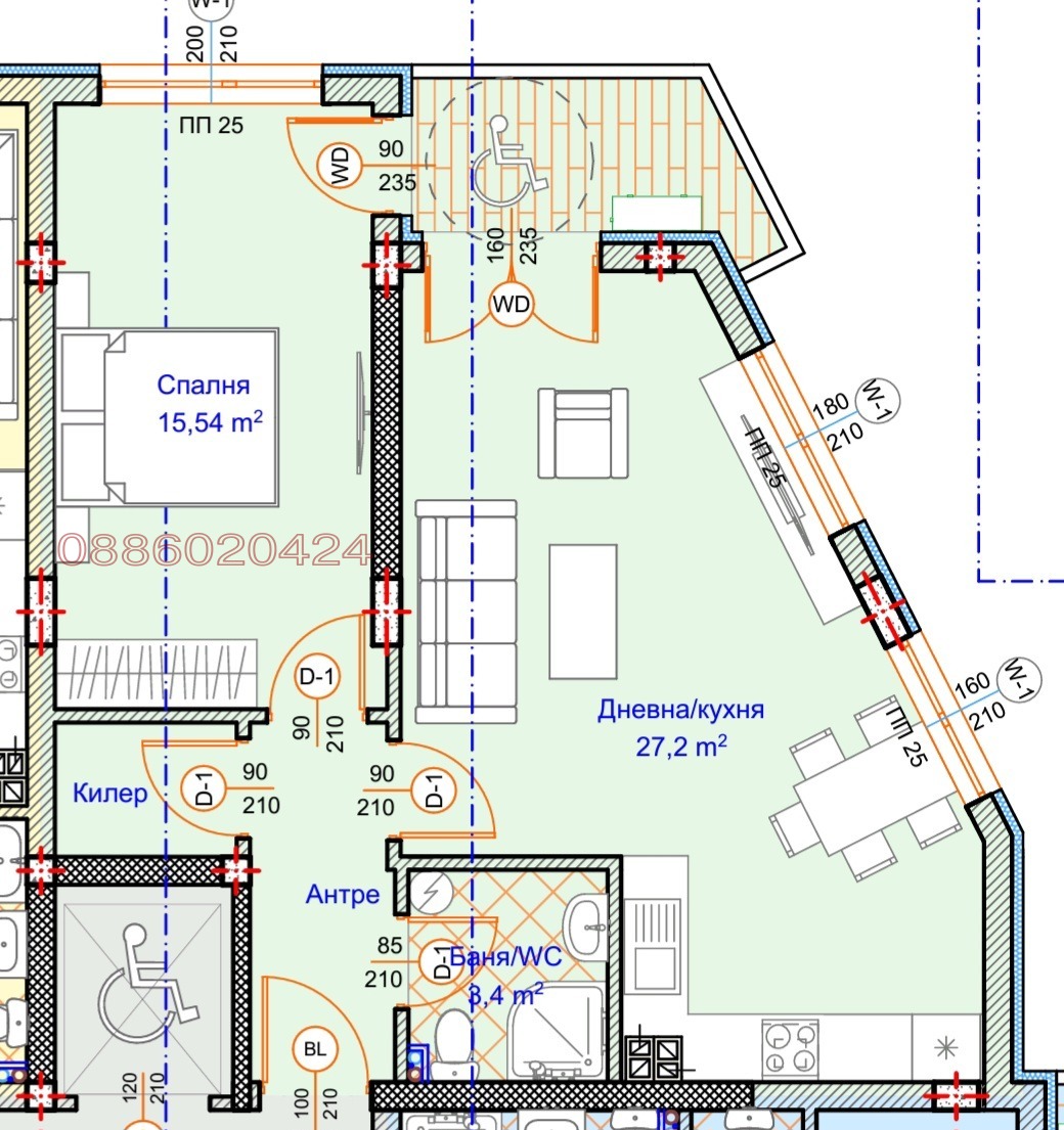
Двустаен ЮЖЕН апартамент в нова бутикова жилищна сграда с АКТ 14 в най-атрактивната и предпочитана част на квартала, без такса поддръжка, непосредственно до квартални магазинчета, салон за красота, детски клуб, ресторант и кафене.
Проекта представлява бутикова сграда на шест етажа с ограничен, контролиран с чип достъп, модерна визия и архитектура. Нисък процент общи части! Само по четири апартамента на етаж и безшумен хидравличен асансьор, което Ви гарантира спокойствието и комфорта. Апартамента се издават по БДС. Луксозно завършени общи части. Строителството се изпълнява с бързи темпове, подбрани материали и съвременни технологии - висок клас тухли, направени от 100% естествен материал, 5 камерна дограма, стъклопакет с нискоенергийно, всесезонно ЕНЕРДЖИ стъкло с аргон, външна изолация с дебелина 10см, осигуряваща максимално висока енергийна ефективност на сградата, което Ви гарантира светло и топло жилище с ниски месечни сметки. Без гипсокартон! Към апартамента се предлага и подземен закрит гараж на цена от 30 000 евро.
Завършване на сградата 2027г.







