ЛОКАЦИЯ : Жилищната сграда се намира в непосредствена близост до к.к Слънчев ден. Локация с бърз достъп до главен булевард. Жилищната сграда се намира в близост до различни обществени имоти, търговски обекти. Лесен достъп до градски транспорт.
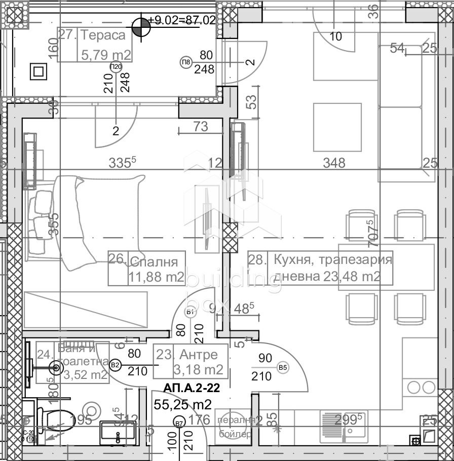
РАЗПРЕДЕЛЕНИЕ : Практично разпределен двустаен апартамент, който съчетава функционалност и съвременен стил. Състои се от просторна дневна с място за кухненски бокс и трапезария, спалня, баня с тоалет и тераса. Благодарение на големите прозорци, пространството е изпълнено с естествена светлина, което създава усещане за уют и откритост.
ЕТАЖНОСТ : Етаж 3 от 7
ИЗЛОЖЕНИЕ : северозапад
ОТОПЛЕНИЕ : Електричество
ПАРКИРАНЕ : Налични подземни паркоместа, надземни паркоместа и гаражи
ЕТАП НА СТРОИТЕЛСТВО : кота 0
СГРАДА : Сградата е проектирана на 7 жилищни етажа. Апартаментите разполагат с функционални разпределения с всекидневни и спални с голяма площ, максимална светлина и простор. Качествено строителство.Тих асансьор. Видео наблюдение.
ИНВЕСТИТОР : Инвеститор с голямо портфолио завършени и успешно въведени в експлоатация сгради.
Билдинг Бокс предоставя безплатна консултация и съдействие при финансиране на избрания от Вас имот.
Оферта 24350
Виж всички обяви в buildingbox.bazar.bg или тук
        
       
         
         
             
            






