Избор на двустайни и тристайни апартаменти, подземни и надземни паркоместа и гаражи. Сградата е в непосредствена близост до автобусна спирка, с лице към асфалтов път. Тази нова кооперация се намира само на 250м отстояние от СОУ' Пейо Яворов' и кметство Владиславово!
Тази нова кооперация се намира само на 250м отстояние от СОУ' Пейо Яворов' и кметство Владиславово!
Нова пет етажна сграда в строеж, с два входа и само по четири апартамента на етаж. Асансьор и широки общи части приспособени и за инвалиди. Плоски покриви, без скосявания. Моля разгледайте архитектурния проект към всяка обява, за по обстойна информация! Разсрочена схема на плащане!
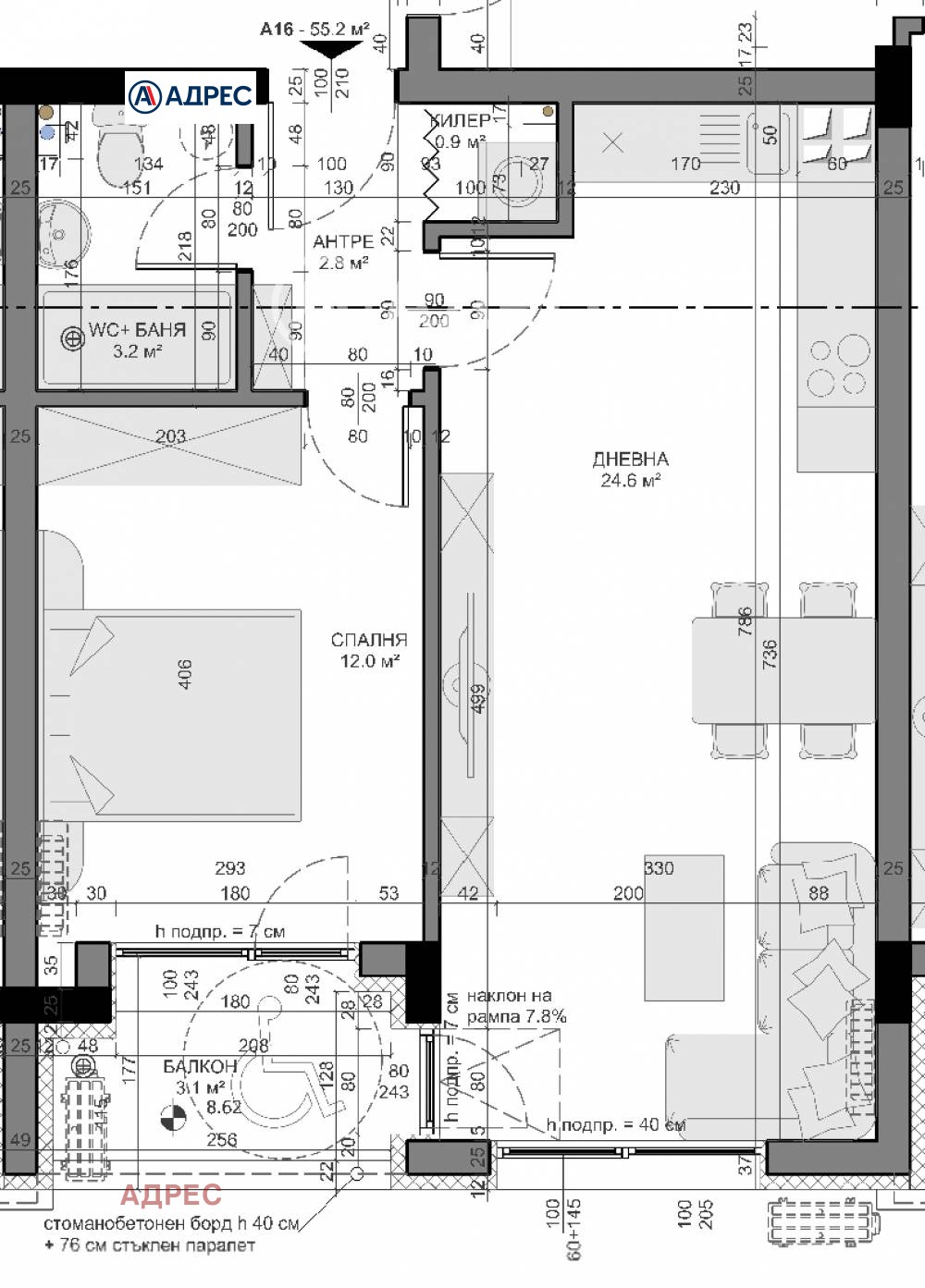
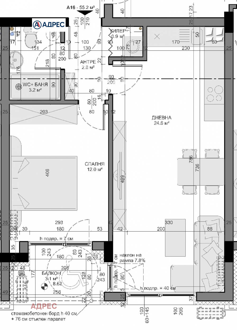
АП.А16 Големи площи, няколко сервизни и мокри помещение към всеки един апартамент.
Възможно кредитиране;
Обади се сега и цитирай този код 662394
Виж всички обяви в adress.bazar.bg или тук
        
       
         
         
         
         
         
         
             
             
             
             
             
            






