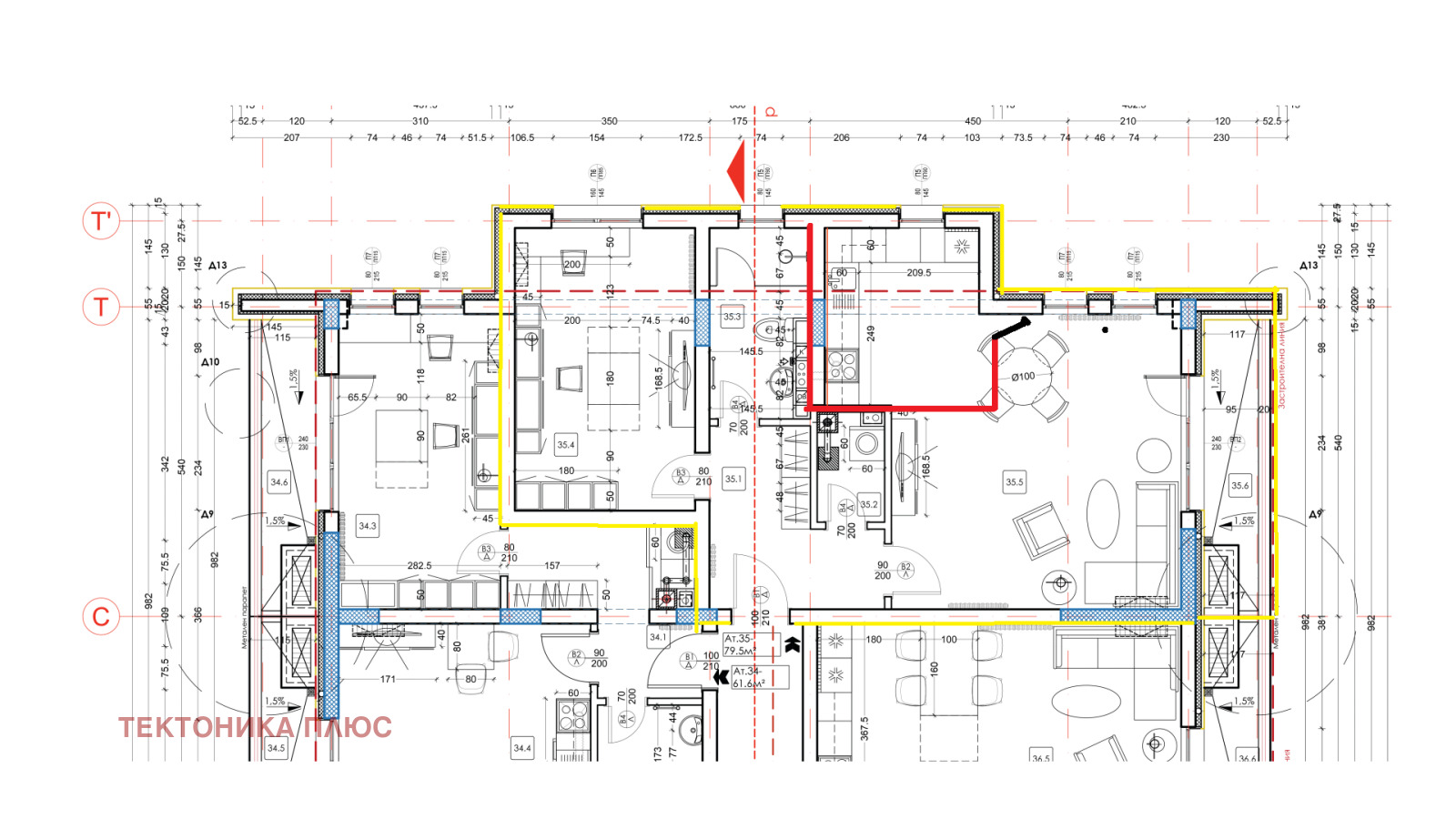
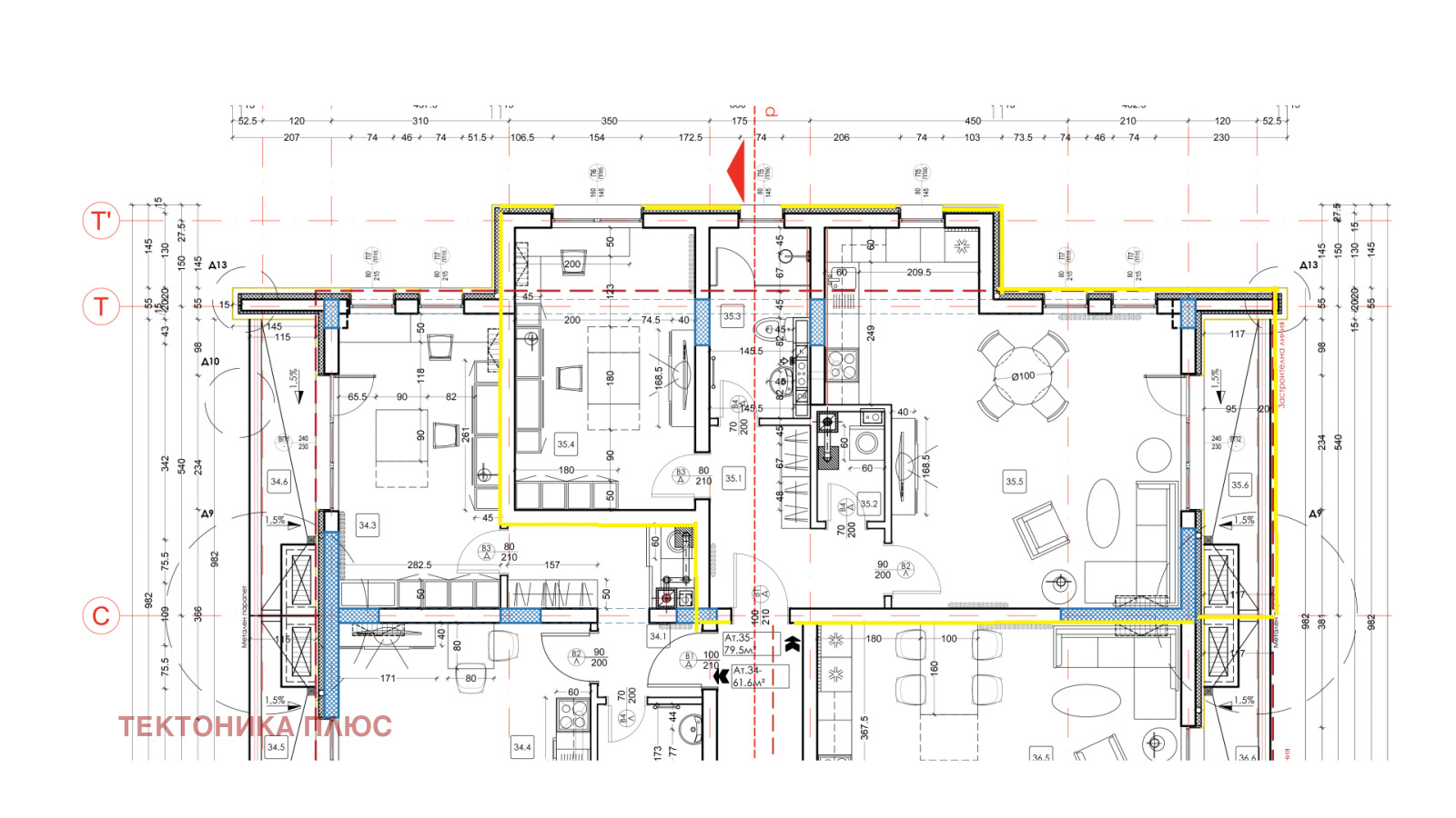
Апартамента е двустаен ,но има възможност да се преустрой в тристаен ! 3-ти етаж с гледка към пл.Витоша .Изложение-ивток , с обща площ от 92,59 кв.м. , чиста площ 79,50 кв.м. , общи части 13,09 кв.м.. ПО ЖЕЛАНИЕ МОЖЕ ДА СЕ ЗАКУПИ ПОДЗЕМЕН ГАРАЖ на цена 33 400 евро без ДДС или надземно паркоместо на цена 20 850 евро без ддс . Апартамента се намира в жилищен комплекс Prestige Park Residence , който предлага висок жизнен стандарт ,разположен в полите на Витоша, в един от най-бързоразрастващите се квартали в София, ж.к. Градина (срещу ж.к. Малинова долина).Комплекса е заобиколен от ново строителство, нова инфраструктура и е в близост до основни пътни артерии : 400 м до южната дъга на Околовръстен път и 100 м до бул. Симеоновско шосе, които осигуряват бърз достъп до магазин Фантастико, София Ринг Мол, кабинков лифт Симеоново, зоопарка, УНСС, НСА, Лесотехнически и Технически университети, British School Sofia, френското училище в комплекс Макси. Жилищният комплекс е въведен в експлоатация.Модерни строителни материали, които гарантират добра шумоизолация, висока енергийна ефективност,асансьор ORONA ,тухли Винербергер Поротерм,окачена вентилируема фасада FunderМax,топлоизолационна система Weber,Изцяло блиндирани врати, с вградена алармена сигнализация, дебелина на крилото минимум 8см, топлоизолирани, съобразени с дизайна и цветовете на сградата,дограма седемкамерна Rehau SYNEGO,в сравнение със стандартните прозорци, SYNEGO предлага до още 50% повече топлоизолация,естествен камък за общи части.Цената е без включен ДДС !



