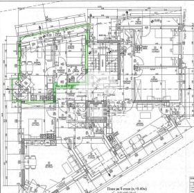
Агенция Живена продава двустаен апартамент с обща площ 58 кв.м в сграда, пред акт 16, в района на Базар Левски. Разположен е на 4-ти етаж в 6-етажна нова сграда. Разпределението на имота е следното: коридор, дневна с трапезария, спалня, баня с тоалетна и две тераси. Изложението му е североизток- северозапад. Много слънчев, топъл и с простор около него. Към имота има избено помещение. Апартаментите ще се издават в степен на завършеност по БДС на фина замазка и шпакловка. В сградата има останали два тристайни апартамента за продажба. Сградата е проектирана със съвременен дизайн. Общите части на сградата ще бъдат завършени с гранит, алуминиеви парапети и луксозен асансьор, а фасадата е с топлоизолация и силиконова мазилка и с еластична звукоизолационна подложка на всички етажни плочи. Входното фоайе на сградата ще бъде изпълнено с луксозна дизайнерска визия и подчертан индивидуален облик. Сградата се изпълнява от строител, доказал се с множество качествено изградени, завършени и влезли в експлоатация сгради. Състои се от 6 надземни етажа и един подземен етаж с място за паркиране в него и в задния двор. Акт 16 се очаква през Ноември 2025 г. Сградата е с отличен достъп, в близост до магазини, детски площадки в непосредствена близост до основни пътни артерии, което я прави леснодостъпна и само на минути от кв.Чайка, Морската градина и идеалния център на града. Снимките с обзавеждането са илюстративни! Агенция Живена извършва необходимите проверки на имота, който сте избрали, организира всички етапи на сделката до нейното финализиране. Оказваме съдействие за отпускане на банков кредит. Оферта 7379







