Лукс! Ново Строителство! Панорама! Топ Локация! Инвестиционна Стойност!
Детайлна информация на: www.novdom1.bg Реф: 81614
Консултант Недвижими Имоти : Калоян Щерев 0894 555 630
🔑 Представяме Ви разкошен двустаен апартамент с Акт 16, разположен в един от най-модерните и атрактивни жилищни комплекси в София Кошер , кв. Манастирски ливади. Имотът се намира в първия, вече завършен етап на проекта, Тук модерен дизайн среща уюта и спокойствието, а всеки детайл е създаден с мисъл за комфорт и качество на живот.
Комплексът е потънал в зеленина, с елегантна архитектура и панорамни гледки с изглед към Витоша, които създават усещане за живот извън града без да го напускате. Само на крачки от дома ви ще откриете специално изградена алея за бягане с дължина 500 метра, идеална за активни сутрини или релаксиращи разходки сред зеленина. Локацията е наистина уникална съчетава удобството на градската среда със свободата и спокойствието на природата.
В цената е включен пълен интериорен дизайн от Fine Design, които са много успешни от 10 години на пазара. Както и дизайнът изработен от строителите на комплекса SoftBuild.
🏠 Подробности за имота:
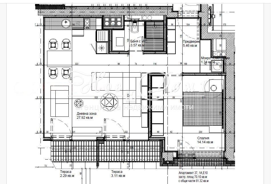
- Вид на имота: 2-стаен, в новопостроен комплекс
- Строителство: Тухла, 2024 г., с Акт 16
- Локация: кв. Манастирски ливади, гр. София
- Етаж: 10 от 14
- Чиста площ: 72 м²
- Изложение: Югозапад
- Цена: 324 000 (с ДДС), без паркомясто
- Допълнително: Паркомясто - 50 000 (с ДДС)
🔹 Интериорни характеристики:
- Брой стаи: 2
- Спалня: 1
- Баня с тоалетна: 1
- Мокро помещение: Да
- Тераси: 2 (с френски прозорци и гледка към Витоша)
- Отопление: Подово отопление с индивидуално газово котле, възможност за монтаж на климатици
- Килер/склад в апартамента
- Проект за интериорен дизайн от Fine Design (включен в цената)
🚪 Апартаментът се състои от: преддверие, просторна дневна с кухня и трапезария, спалня, баня с тоалетна, мокро помещение и две тераси с панорама към града и Витоша. Отличава се с висок етаж, модерни инсталации и потенциал за стилно довършване.
🌟 Екстри и удобства в комплекса:
- Модерен фитнес и CoShare Club йога студио
- Зелени площи с алеи за разходка и бягане (500 м)
- Безпрепятствен достъп между отделните зони
- Съвременни материали: травертин, метал, UV филтрирани трислойни стъклопакети
- Архитектура, вдъхновена от природата и градската динамика
📈 Инвестиционен потенциал:
- Висока ликвидност
- Отлична локация над Мол България, бул. България
- Част от утвърден проект с вече реализирани сгради
- Подходящ както за живеене, така и за отдаване под наем
- Имотът няма тежести
🏙️ Квартал и околности:
- В близост до: Мол България, магазини, заведения, градски транспорт
- Тиха и модерна среда с достъп до планина и центъра на града
- Магазини и ресторанти в района на комплекса
📑 Документите по имота са изрядни и готови за сделка.
✨ Не изпускайте възможността да инвестирате в имот с уникално местоположение, впечатляваща визия и силен потенциал! Свържете се с нас за оглед
Съдействие за банков кредит при възможно най-добри условия според индивидуалните нужди на клиента.
'НОВ ДОМ 1' разполага с:
- 'Юридически Отдел' - извършва всички проверки и организира сделката до нотариално прехвърляне
- 'Кредитен Отдел' - съдействие за банков кредит при изгодни условия
- 'Строително-Ремонтен Отдел' - възможност за цялостен ремонт до ключ на най-добри цени
Консултант Недвижими Имоти : Калоян Щерев 0894 555 630
Нов Дом 1 - винаги най-доброто на пазара!
Виж всички обяви в novdom1sf.bazar.bg или тук







