✨ Представяме на Вашето внимание продажба на двустаен апартамент с гледка към морето в Нова Жилищна Сграда 🏡 с модерна и елегантна визия, находяща се гр. Приморско.
✨Сградата е проектирана на Пет етажа и разполага с 7 бр. Двустайни апартамента и 10 бр. Едностайни Студиа с гледка към морето.🌊
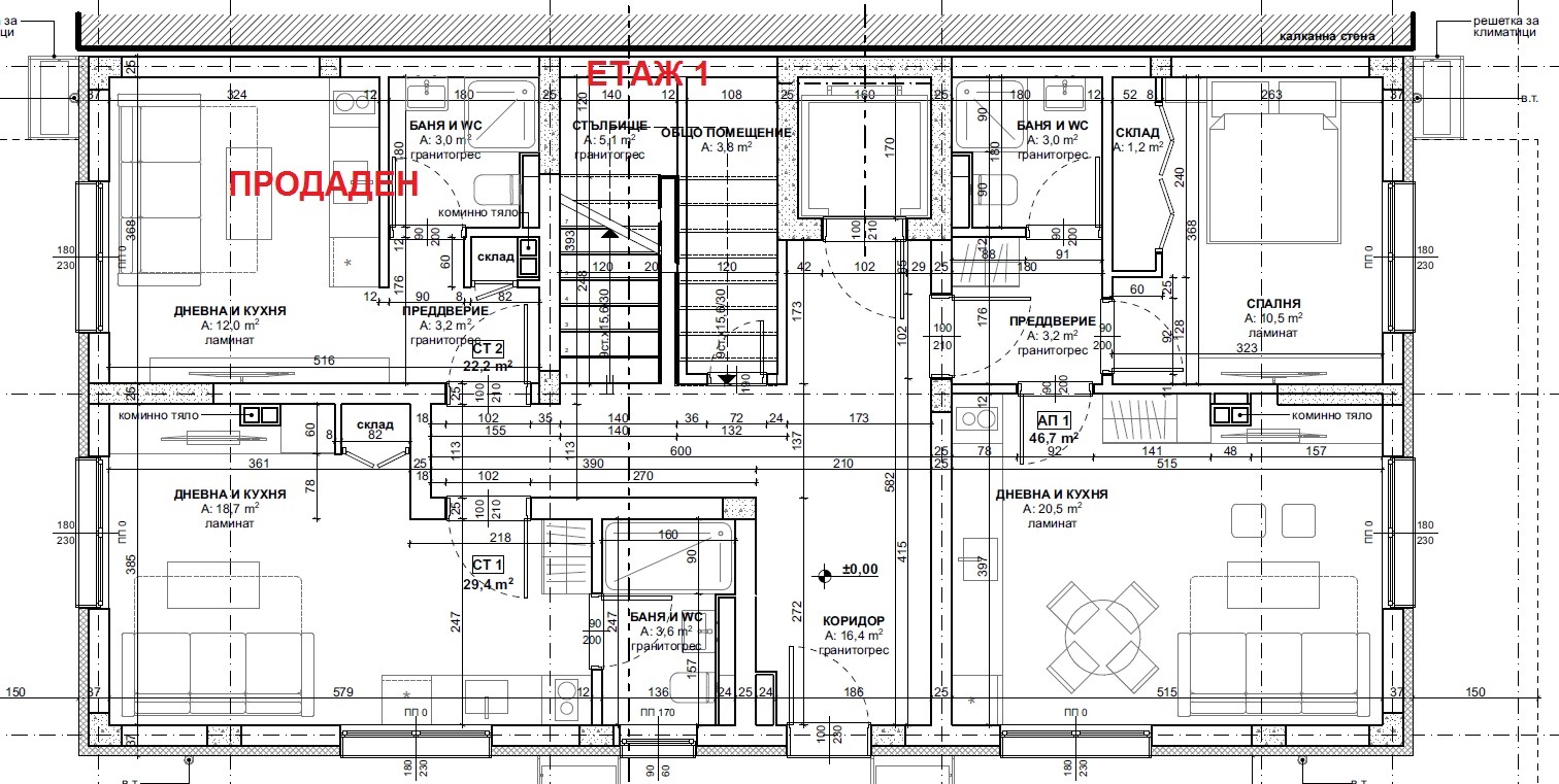
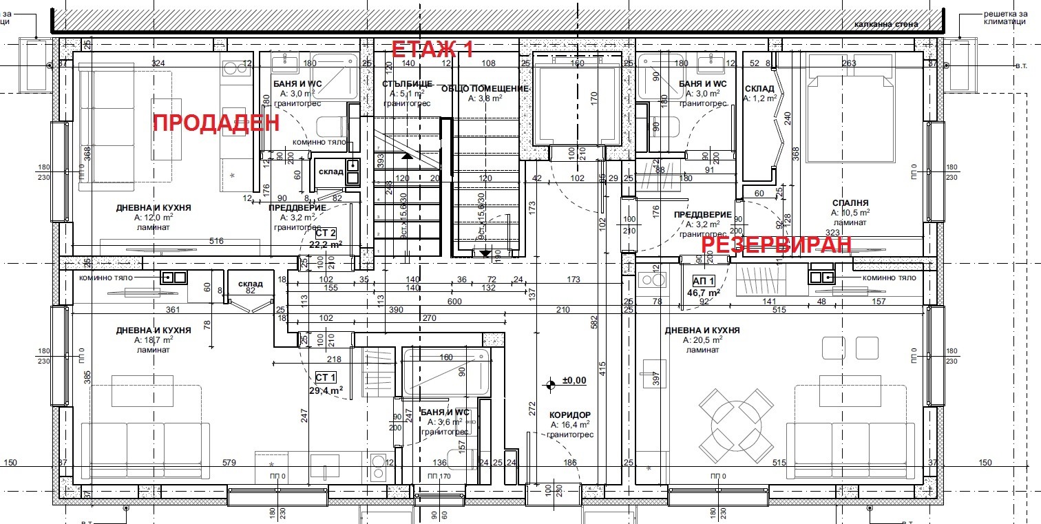
✨ Апартаментът се предлага със степен на завършеност по БДС /Замазка + Шпакловка/ и ще има възможност за завършването му до положение 'До Ключ '.
✨ Местоположението е на 700 метра от плажната ивица в тих и спокоен район с нови жилищни сгради.
💰 Избор на начин на плащане на различни етапи от строителството.
Отлична локация за отдих и инвестиция.
Просторни стаи с панорамни прозорци за изобилие от естествена светлина.
Гледка към морето.🏖️
- Опция за закупуване на открито Паркомясто- 10000 евро
БЕЗ ТАКСА ПОДДРЪЖКА
Начало на строителството - 02.2025г.
⭐️Срок за пускане в експлоатация 30.05.2027г.
Реф. A-1374456







