Агенция SUPRIMMO: www.suprimmo.bg
Представяме двустаен апартамент за продажба в новострояща се бутикова жилищна сграда с ограничен брой жилища, проектирана с фокус върху комфорт, енергийна ефективност и стил.
Районът осигурява спокойна жилищна атмосфера, съчетана с близост до културни обекти, заведения и метростанция 'Константин Величков' (3 минути пеша).
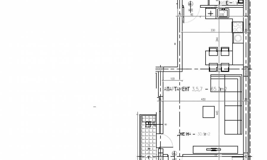
Имотът е разположен на четвърти жилищен етаж и предлага 65.3 кв.м площ с южно изложение.
Разпределение:
антре;
всекидневна с кухненска част;
спалня;
баня с тоалетна.
Сградата се състои от седем етажа с общо 11 апартамента. Архитектурната визия е модерна, а всички материали, свързани с топлоизолираността отговарят на клас А по скалата за енергоспестяване. Отоплението и охлаждането в апартаментите е решено със съвременна термопомпа. Паркирането е посредством закрити паркоместа.
Степен на издаване на апартаментите:
настилка цименто-пясъчна замазка, стени и тавани - гипсова мазилка;
санитарен възел с под с цименто-пясъчна замазка и парозамазна хидроизолация, стени и тавани на варова мазилка;
тераси с настилка от мразоустойчив гранитогрес, монтирани осветителни тела, парапет от стъкло триплекс;
монтирано ел.табло с предпазители, заредени ключове и контакти, фасунги, монтирана водопроводна и канализационна инсталация;
монтиран домофон и изводи за телефон/интернет;
Гъвкави схеми на плащане.
За допълнителна информация и организиране на оглед, моля свържете се с отговорния брокер по офертата.
За повече информация свържете се с нас и цитирайте референтния номер на имота. Моля, кажете, че сте видeли обявата в този сайт.
Референтен номер: SOF-132704
Тел: 0882 851 775, 02 403 82 54
Отговорен брокер:Мария Михайлова
Без комисиона от купувача







