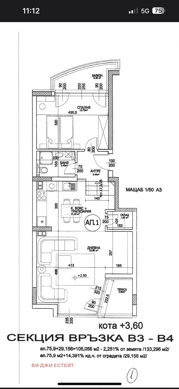
1 бр. ПАРКОМЯСТО В ЦЕНАТА! Представяме ви прекрасен двустаен апартамент в един от най-добрите райони на София кв. Драгалевци. Имота е разположен на 1-Ви етаж над магазини. Разполага с хол с кухненски бокс, спалня, 1 баня с тоалетна , отделно тоалетна и две тераси. Отоплението е на ГАЗ. Апартамента е с югозападно и северно изложение.
Възможност за покупка на допълнителни външни паркоместа на цена от 18 000 евор с ДДС. Огледи в удобно за клиента време.







