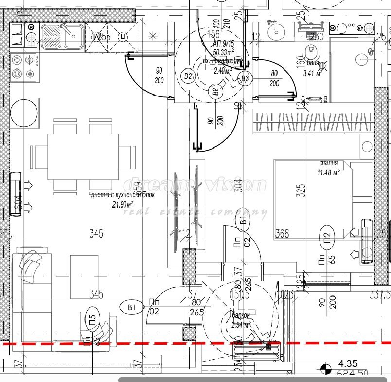
БЕЗ КОМИСИОННА ОТ КУПУВАЧА! ДРИЙМ ВИЖЪН НЕДВИЖИМИ ИМОТИ Продава двустаен апартамент на броени минути от Бизнес парк София, метростанция, множество спирки на градски транспорт, супермаркети, помещения от обслужващият сектор, училище, детски градини. Нова качествено изграждаща се сграда с модерна визия и луксозни общи части. Жилището се състои от: входно антре, дневна с кухненски бокс и трапезария, спалня, баня с тоалетна, тераса. Предава се на шпакловка и замазка. Възможност за закупуване на паркомясто или гараж. В сградата предлагаме и други апартаменти. Качествено строителство от ДОКАЗАН СТРОИТЕЛ. Оферта в агенцията 10967. Всички наши обяви ги работим с колеги. Още наши оферти може да намерите на www.dreamvision.bg Телефони за връзка: 02/421 96 35 ; 0886 13 22 91 Димитър Георгиев







