СМЕНИ АДРЕСА продава двустаен апартамент с отлични площи и разпределение в новострояща се сграда в район Владислав Варненчик, Кайсиева градина.
Жилището е на среден етаж, изцяло покрит, без крайни стени.
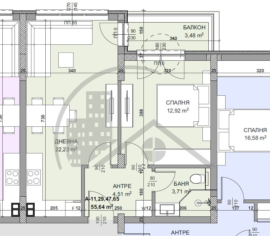
Разполага с обща площ 64 кв.м.- чиста 56 кв.м. разпределени по следния начин:
дневна 22 кв.м. с излаз на балкон
спалня 13 кв.м. с излаз на балкон
балкон 3,5 кв.м.
санитарен възел 3.7 кв.м.
входно антре 4,5 кв.м.
Сградата е в строеж, разплащането е по етапно.
Има опция за закупуване на ПМ.
За допълнителна информация и организиране на огледи, моля обадете се и цитирайте кода на обявата: 11626
Агенция СМЕНИ АДРЕСА предлага и други подобни имоти, с което улеснява избора Ви, съдейства за отпускане на кредити при най-добри условия, извършва обстойна юридическа проверка на имота и изготвя всички необходими документи за сделка.
СМЕНИ АДРЕСА с нас, докато другите все още търсят!







