БИЛДИНГ БОКС предлага за продажба двустаен апартамент в новострояща се жилищна сграда
ЛОКАЦИЯ : Жилищната сграда се намира в кв. Владиславово. Локация с бърз достъп до главен булевард, в квартал с модерни нови жилища. Жилищната сграда се намира в близост до различни обществени имоти, търговски обекти, медицински центрове. Отлична локация. Лесен достъп до градски транспорт.
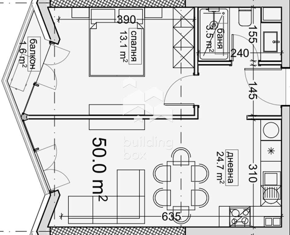
РАЗПРЕДЕЛЕНИЕ : Практично разпределен двустаен имот, който съчетава функционалност и съвременен стил. Състои се от просторна дневна с място за кухненски бокс и трапезария, самостоятелна спалня, баня с тоалетна и удобно антре. Благодарение на големите прозорци, пространството е изпълнено с естествена светлина, което създава усещане за уют и откритост.
ЕТАЖНОСТ : Етаж 5 от 10
ИЗЛОЖЕНИЕ : Запад
ОТОПЛЕНИЕ : Електричество
ПАРКИРАНЕ : Налични подземни паркоместа, гаражи, както и външни паркоместа, които могат да бъдат закупени допълнително.
ЕТАП НА СТРОИТЕЛСТВО : пред разрешение за строеж
СГРАДА : Сградата е проектирана на 10 жилищни етажа, с общо 114 апартамента и 60 студиа. Апартаментите разполагат с функционални разпределения с всекидневни и спални с голяма площ, максимална светлина и простор. Качествено строителство. Смарт окабеляване. Тих асансьор. Енергийна ефективност. Видео наблюдение.
ИНВЕСТИТОР : Инвеститор с голямо портфолио завършени и успешно въведени в експлоатация сгради.
Билдинг Бокс предоставя безплатна консултация и съдействие при финансиране на избрания от Вас имот.
Оферта 23151







