БЕЗ КОМИСИОННА ИДЕАЛНА ИНВЕСТИЦИЯ В НОВО СТРОИТЕЛСТВО!
Двустаен апартамент в нова сграда кв. Христо Смирненски, ул. Рая
Предлагаме функционален двустаен апартамент с висок инвестиционен потенциал, разположен в бързо развиваща се зона с търсене от наематели и купувачи кв. Христо Смирненски, Пловдив.
✔ Отлична локация в близост до болници, университети, търговски обекти и градски транспорт
✔ Тиха улица, ново строителство търсен микс от живущи и инвеститори
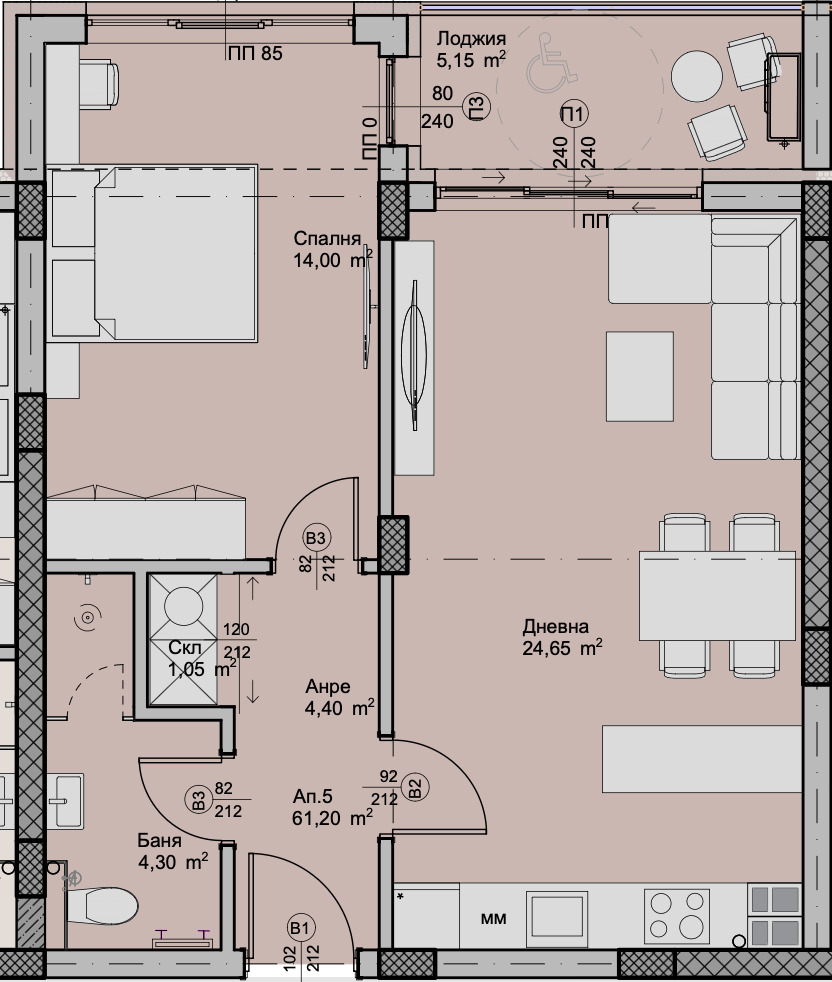
✔ Функционално разпределение хол с кухненски бокс, спалня, баня с тоалетна, тераса
✔ Подходящ за отдаване под наем или препродажба с печалба след завършване
📊 Инвестиционни акценти:
Акт 16 предвиден за 2028 г. добра възможност за капиталова доходност при растящи цени
Очакван ръст в стойността на имота с 20 30% до завършване
Подходящ за дългосрочно отдаване под наем близост до ключови локации в града - МОЛ Пловдив, МБАЛ Св. Георги, АГ Болница Селена и Пълмед.
Силен интерес от наематели в района: медицински персонал, студенти, млади семейства
🧱 Сграда от доказан инвеститор високо качество, HPL фасада, контролиран достъп, нисък процент общи части
🚗 Възможност за покупка на гараж/паркомясто
🏦 Подходящ за банково финансиране съдействие без допълнителна такса
📞 За актуални цени, схеми на плащане и останали наличности:
Петър Накаленов HH Property 2107
📱 0897 077 363
📧 [email protected]







