🏡 Домът не е просто квадратура той е усещане.
На тиха, зелена уличка в кв. Христо Смирненски, расте не просто сграда, а ново начало.
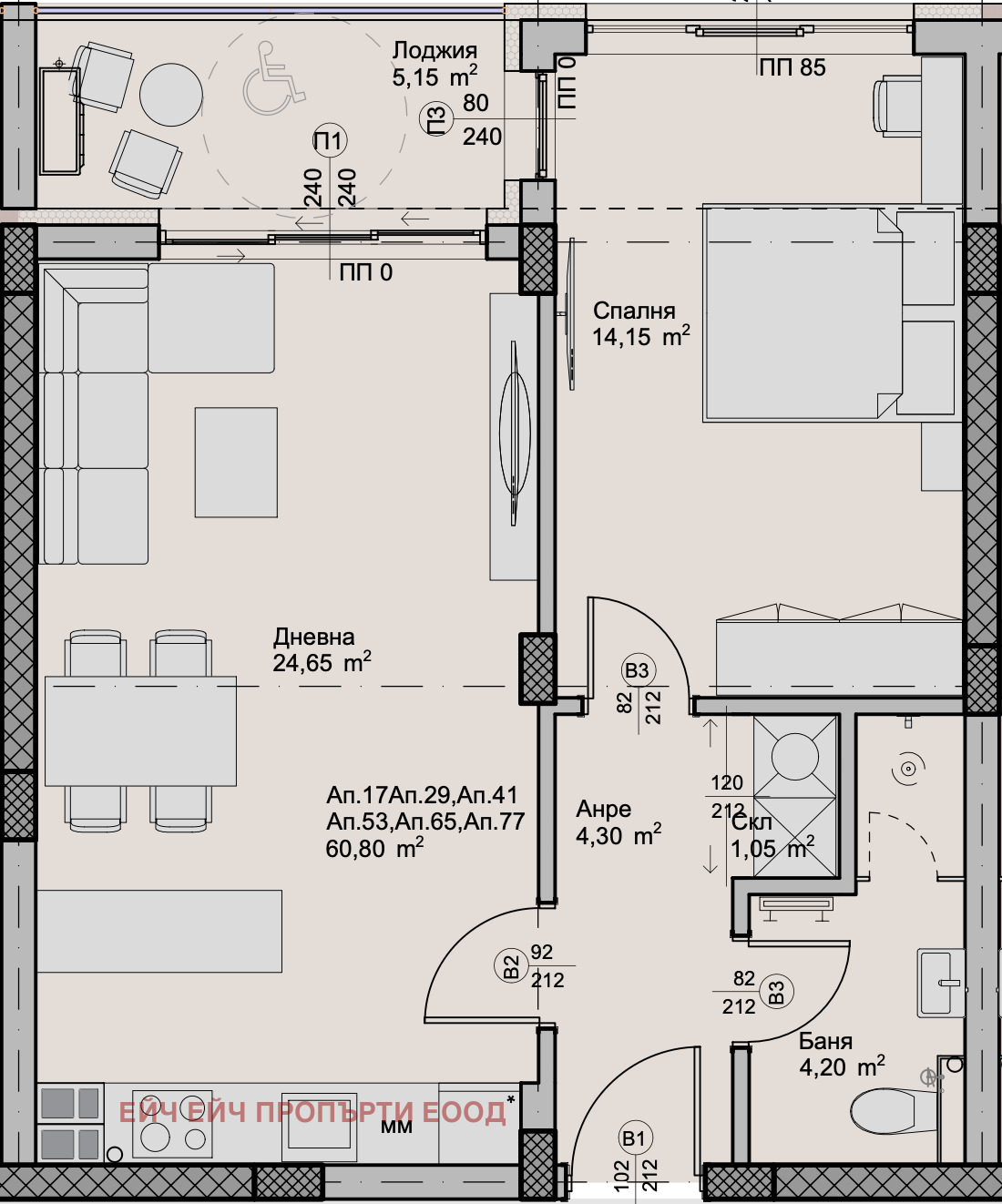
И точно в нея те чака твоето място светъл и уютен двустаен апартамент, в който всичко си идва на мястото още с първата крачка.
☀️ Просторна дневна с топла светлина сутрин,
🍷 тераса, от която ще гледаш залезите,
🛏️ спалня, която просто казва почини си, заслужаваш .
Тук има място за всичките ти малки ритуали.
И още нещо сградата се строи от доказан инвеститор, с грижа към детайла и дългосрочно мислене. Без компромис. Без посредници. Без комисионна.
📅 Сградата ще бъде готова през 2027 г.
🚗 Възможност за гараж или паркомясто
🏦 Съдействие при банков кредит напълно безплатно
📞 Обади ми се ще ти покажа повече, отколкото можеш да си представиш:
Петър Накаленов HH Property 2107
📱 0897 077 363
📧 [email protected]
Виж всички обяви в hhproperties.bazar.bg или тук







