✨ Двустаен апартамент в новострояща се сграда на ул.Рая , кв. Христо Смирненски отлична възможност за инвестиция и отдаване под наем
📍Благодарение на стратегическото си местоположение в близост до университети и учебни заведения, апартаментите в тази сграда са изключително подходящи за отдаване под наем районът е предпочитан от студенти и млади професионалисти, което ги превръща в устойчива дългосрочна инвестиция.
🏡 Сградата се отличава с модерна архитектура, високо качество на строителство и внимание към функционалността проектирана за хора, търсещи съвременен комфорт в спокоен градски контекст. Разположена е на тиха улица с удобен достъп до основни пътни артерии, градски транспорт и търговски обекти.
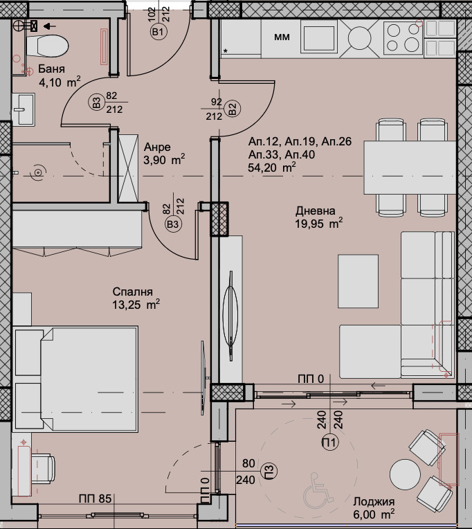
Апартаментът е с южно изложение и функционално разпределение:
- входно антре
- светла дневна с кухненски бокс
- самостоятелна спалня
- баня с тоалетна
📐 Чиста площ: 54,2 кв.м
📏 Обща площ: 63,64 кв.м
🌿 Средата около сградата предлага озеленени площи, детски площадки и отлично съчетание между градски удобства и жилищно спокойствие.
📅 Срок на завършване: 36 месеца
🚗 Възможност за закупуване на паркоместа и гаражи
🏦 Подходящ за банково финансиране безплатно съдействие
✅ Директна продажба от инвеститор без комисионна
Оферта 6754
Виж всички обяви в hhproperties.bazar.bg или тук







