✨ Двустаен апартамент с източно изложение на ул.Рая , кв. Христо Смирненски качество, локация и сигурност от доказан строител.
🏡 Сграда, отличаваща се с изчистена и съвременна визия, прецизно изпълнение и висок клас материали, които създават усещане за комфортен и устойчив градски живот.
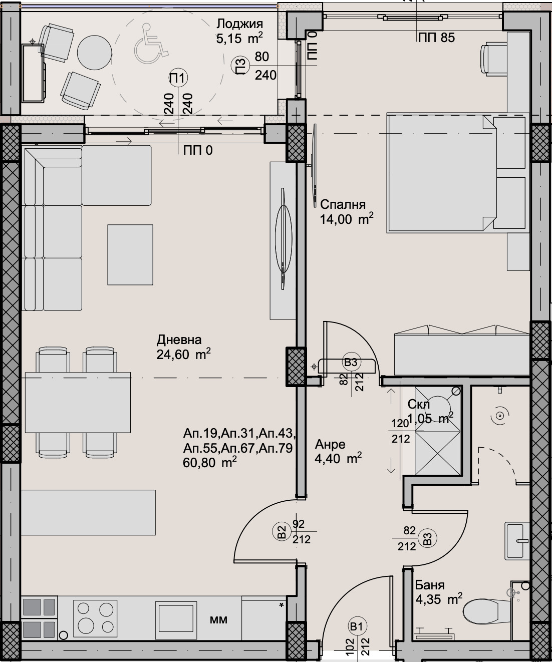
Апартаментът е с изложение изток и функционално разпределение:
входно антре
просторна дневна с кухненски бокс
самостоятелна спалня
баня с тоалетна
тераса с гледка и светлина през целия ден
📐 Чиста площ: 61,2 кв.м
📏 Обща площ: 71,06 кв.м
🌿 Локацията на ул.Рая в кв. Христо Смирненски съчетава тиха жилищна среда с близост до основни пътни връзки, парк, училища, болници и магазини идеален избор за млади семейства, работещи професионалисти или с цел отдаване под наем.
📅 Срок на завършване: 36 месеца
💰 Гъвкава схема на плащане
🚗 Възможност за закупуване на паркоместа и гаражи
✅ Директна продажба от инвеститор без комисионна
🏦 Подходящ за покупка с банково финансиране съдействие без допълнителни такси
Оферта 6509
Виж всички обяви в hhproperties.bazar.bg или тук







