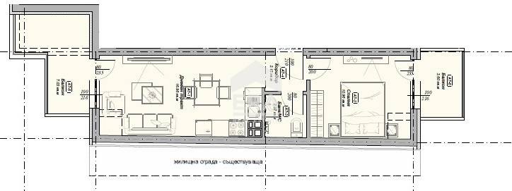
Апартаментът е разпределен, както следва: дневна с кухненски бокс и трапезария с площ от 16.98 кв. м, самостоятелна спалня (10.96 кв. м), баня с тоалетна (2.37 кв.м.), два балкона към всяка от стаите.
Ще бъде завършено по БДС.
Плащането е гъвкаво - разсрочено във времето и според личните възможности. Възможност за кредитиране.
В сградата се предлагат и други двустайни и тристайни апартаменти, с различни квадратури и изложения.
Има възможност да закупуване на подземно паркомясто на цени от 26 000 евро.
Имотът е подходящ за лично ползване и отдаване под наем - дългосрочно и за нощувки, поради комуникативното си местоположение в централната част на града. В близост са главни пътни артерии, автобусни спирки, големи вериги магазини, учебни заведения, детски градини, аптеки, административни сгради, банки и др.
Оферта 7100025
Виж всички обяви в paradise_ltd.bazar.bg или тук
        
       
         
         
         
             
             
            






