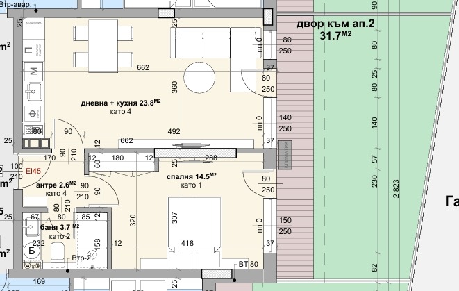
Жилището се състои от просторна всекидневна с кухненски бокс, спалня и двете с директен излаз към двора, антре и баня с тоалетна. Апартаментът е с източно изложение, което осигурява много естествена светлина и уют през целия ден.
Сградата е в етап на строителство с издаден Акт 14 и се изгражда с висококачествени материали и луксозно изпълнение от доказан строител. Безкомпромисно качество и внимание към всеки детайл са в основата на проекта. Имотът се предлага без комисионна от купувача.
Локацията съчетава спокойствие и удобство в близост до парк Аязмото , училища, детски градини, магазини и градски транспорт. Апартаментът е подходящ както за лично ползване, така и за инвестиция.
Виж всички обяви в mihaylova.bazar.bg или тук







