LUXIMMO FINEST ESTATES: www.luximmo.bg
Предлагаме двустаен апартамент в новострояща се жилищна сграда с модерна визия в м-т Гърдова глава в квартал 'Бояна'. Районът осигурява спокойна жилищна атмосфера, красиви природни гледки и екологична среда, поради близостта си до планината, което го прави предпочитан за живеене. Местоположението е в близост до спирки на градски транспорт и с бърз и лесен достъп до бул. 'Цар Борис III' и Околовръстен път.
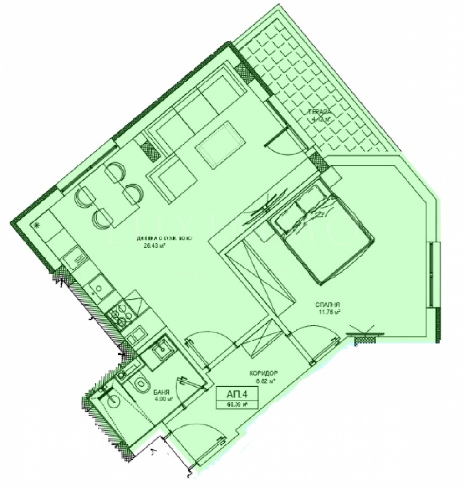
Имотът е разположен на трети етаж и предлага 78.69 кв.м. площ с изложение изток-север и следното разпределение: антре, всекидневна с кухненска част, спалня, баня с тоалетна.
Очакван Акт 14 в декември 2025! Очакван Акт 16 в края на 2026 г.
Сградата се състои от пет етажа с общо 19 апартамента. Архитектурната визия е модерна, а всички материали, свързани с топлоизолираността отговарят на клас А по скалата за енергоспестяване.
Сградата се състои от двустайни, тристайни и четиристайни апартаменти за продажба, с функционални разпределения и благоприятни изложения. Имотите на първо ниво разполагат със собствен двор. Паркирането е решено с подземни гаражи, както и с открити паркоместа.
Технически характеристики:
монолитна стоманобетонна сграда с предимно безгредова конструкция, със стоманобетонови шайби, разположени регулярно и осигуряващи 9-та степен на земетръс;
зидария с тухли от Wienerberger, Mladost или друг реномиран производител от този клас;
покрив с 12 см топлоизолация, битумна хидроизолация на плоските покриви и профилирана ламарина на скатните покриви;
фасада с естествен камък;
общи части с настилки от естествен камък, стени и тавани на латекс;
подземен паркинг с настилка от шлайфан бетон;
димоуплътнени врати от алуминиева дограма на всяко етажно ниво отделящи стълбищната клетка от ...
Цената на имота е 138 495 евро / 270 872.68 лв. без ДДС или 166 194 евро / 325 047.21 лв. с ДДС. Данъчен кредит може да се ползва при определени условия.
За повече информация свържете се с нас и цитирайте референтния номер на имота. Моля, кажете, че сте видeли обявата в този сайт.
Референтен номер: SOF-131946
Тел: 0882 750 661, 02 403 82 10
Отговорен брокер:Мария Михайлова
Без комисиона от купувача







