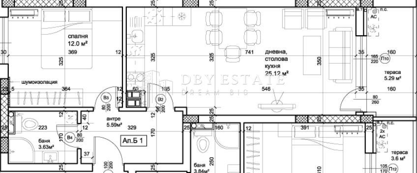
Представяме Ви двустаен апартамент в района на Кючук Париж. Жилището е на среден етаж и има следното разпределение: всекидневка с кухненски бокс, спалня, баня с тоалетна, тераса и прилежащо избено помещение. Има възможност за закупуване на гараж или паркомясто. Сградата се строи от инвеститор с дългогодишен опит с много завършени обекти, с материали от най-висок клас, луксозни общи части и модерна архитектура, осигуряващи комфорт и уют в съвременния градски стандарт за живот. В сградата се предлагат и тристайни апартаменти.
За повече информация или оглед се обадете на посочения телефон и цитирайте Оферта 1704.
За още предложения посетете нашия сайт: https://dbyestate.bg/
Виж всички обяви в dbyestate.bazar.bg или тук







