Ексклузивно представяме двустаен апартамент за продажба, в сграда ново строителство пред Акт 15 в кв. 'Малинова долина', до Ring Mall и IKEA в София. Имотът предлага удобно разпределение, модерно строителство и висок инвестиционен потенциал с оглед на развитието на района и близостта до важните търговски и бизнес обекти.
Схема на плащане:
20% при сключване на Предварителен договор;
80% след получаване на Акт 16.
Планиран Акт 16 - в края на 2026 г.
В тих и добре уреден район, апартаментът се намира в непосредствена близост до парк, бъдеща метростанция, заведения, хранителни магазини, училище, детска градина и търговски обекти. Районът е спокоен и същевременно комуникативен, с отлични условия за живеене. Локацията е с бърз достъп до ключови булеварди и Околовръстен път, с лесен достъп до централните части на столицата.
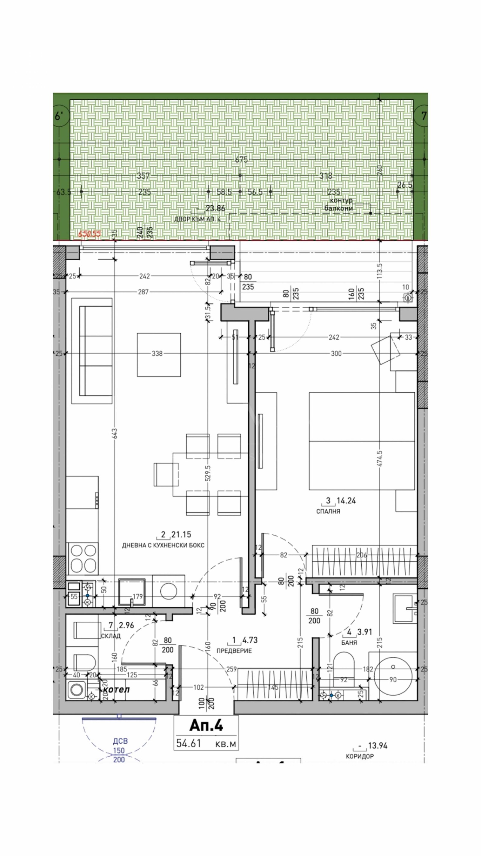
Жилището е с обща площ 63.16 кв.м и се намира на партерен етаж.
Разпределение на имота:
Входно антре 4,73 кв.м;
Хол с кухненски бокс 23,86 кв.м;
Спалня 14,25 кв.м;
Баня с тоалетна 3,91 кв.м;
Мокро помещение 2,96 кв.м;
Двор с излаз от дневната и спалнята 23,86 кв.м.
Сградата предлага модерна архитектурна визия и строителството с висококачествени материали, с малък брой апартаменти на всеки етаж. Има възможност за закупуване на паркомясто.
Очакваме Вашето запитване
Ако желаете да организирате оглед на имот, който Ви интересува, или да посетите някой от нашите офиси, моля свържете се с нас. За да уговорите ден и час за среща или оглед, можете да се обадите на посочения в обявата телефон или да изпратите запитване чрез електронната поща. Нашият консултант ще Ви съдейства с всички необходими подробности и ще уговори удобно за Вас време.
Търсите подходящия за Вас имот?
Не се колебайте да се свържете с нас и да ни разкажете за Вашите нужди и предпочитания. Нашият екип ще проведе задълбочено проучване на пазара, за да Ви предложи имоти, които точно ...
За повече информация свържете се с нас и цитирайте референтния номер на имота. Моля, кажете, че сте видeли обявата в този сайт.
Референтен номер: SOF-131625
Тел: 0882 679 636, 02 402 24 71
Отговорен брокер:Захари Цветков
Виж всички обяви в luximmo.bazar.bg или тук







