Комплексът се изгражда с фокус върху качеството на материалите и енергийната ефективност. Използват се тухли Младост Strong, асансьори Schindler, многокамерна дограма Schuco и др.
Отоплението и охлаждането са предвидени да бъдат с висок клас термопомпи, които предлагат най-голямо удобство и ниски разходи.
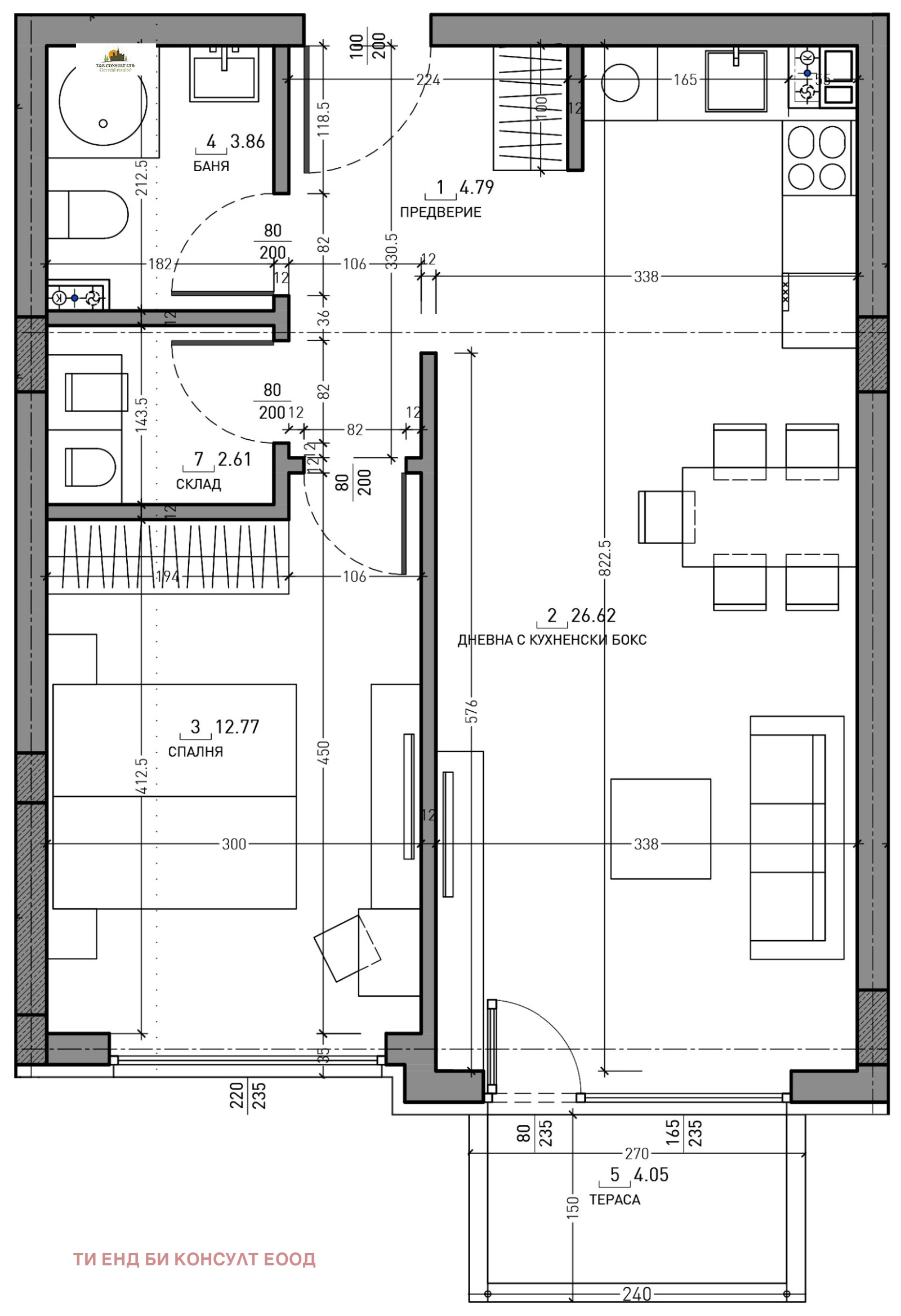
Самият апартамент е разположен на 2-ри етаж, с източно изложение и с чиста площ от 62кв.м., разгърната по следния начин: преддверие, дневна с кухненски бокс, спалня, склад, баня с тоалетна и тераса.
Очакван пусков период: средата на 2026 година.
Има възможност за закупуване на подземен гараж или паркомясто срещу допълнително заплащане.
Разполагаме с голямо разнообразие от двустайни, тристайни и четиристайни апартаменти с различни квадратури, етажност и изложение!
За повече информация и огледи на телефон: 0897 38 98 98 - Валери Борисов
Виж всички обяви в tandbconsult.bazar.bg или тук







