Проектът включва общо 25 апартамента, всеки от които е проектиран с мисъл за удобството на бъдещите си обитатели. Просторните и светли помещения с функционални разпределения създават усещане за простор и позволяват оптимално използване на пространството.
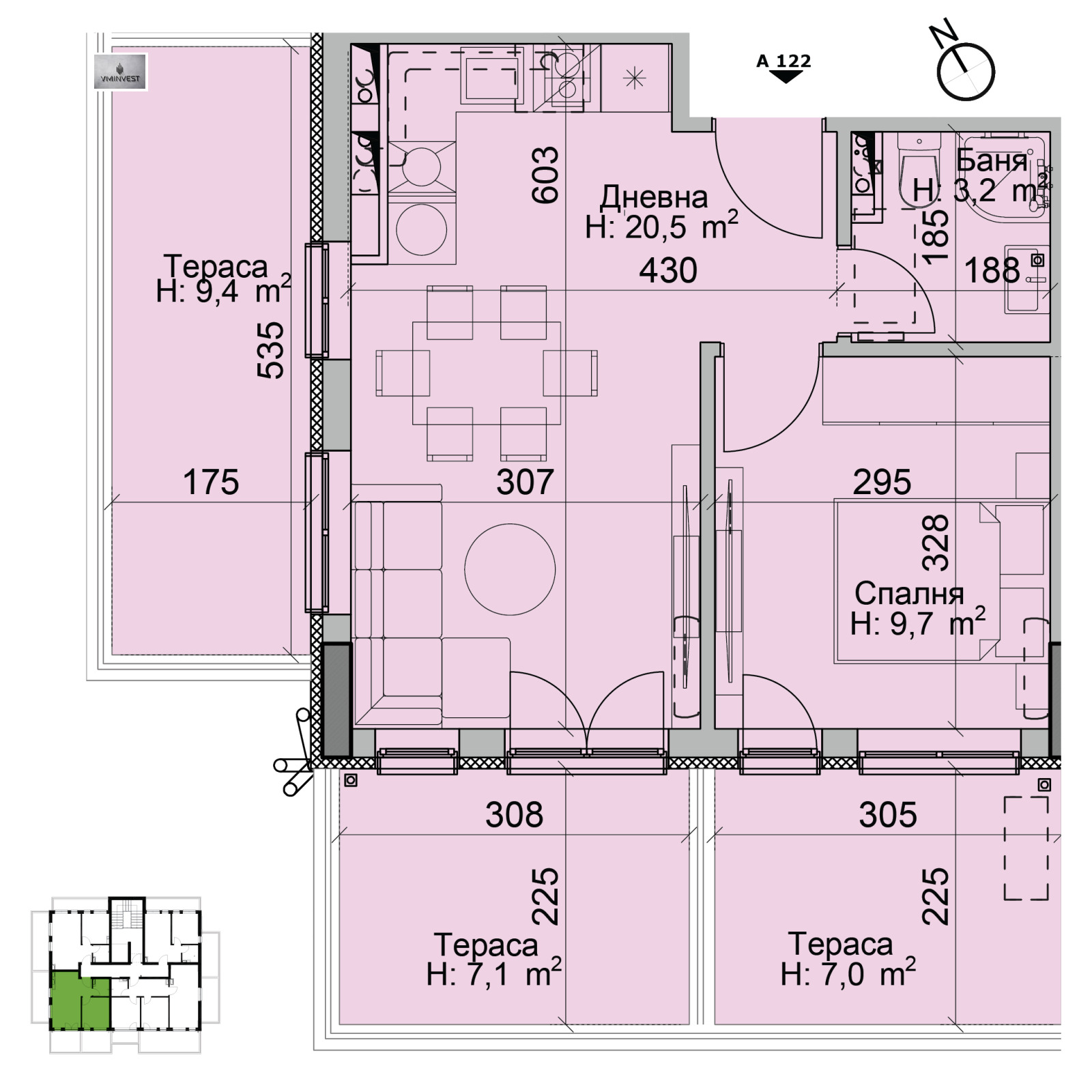
Апартаментът /Ап. 122/ е с площ от 79,18 кв.м. и е на шести етаж.
Разпределение: дневна с кухненски бокс /20,50 кв.м./, спалня /9,70 кв.м./, баня с тоалетна /3,20 кв.м./ и три тераси /9,40 кв.м. и 7,10 кв.м. и 7,00 кв.м./.
Има възможност за закупуване на паркоместа и гаражи на цени от 16 000 евро.
Сградата разполага също с общо 15 паркоместа и 8 гаража, осигурявайки удобство за собствениците на автомобили.
Проектът е съобразен със съвременните изисквания за енергийна ефективност и екологична устойчивост. Жителите ще се насладят на уютна жилищна среда с ниски енергийни разходи и минимален отпечатък върху околната среда.
Този проект е идеалният избор за хора, които търсят спокойствие, сигурност и уют, без да се отказват от удобствата на големия град.
Компанията ни може да ви съдейства за кредитно посредничество, ако сте предвидили плащания чрез ипотечен и/или потребителски кредит.
Като наши клиенти имате възможността да се възползвате от безплатно кредитно консултиране. Ще получите най-добрите оферти, съобразени с вашия личен профил и предпочитания, при преференциални условия.
Научете повече на: www.vminvest.bg
Виж всички обяви в vmi_invest.bazar.bg или тук







