НОВА ЖИЛИЩНА СГРАДА !! КОМУНИКАТИВЕН РАЙОН !! ДОКАЗАН СТРОИТЕЛ !! СРЕДЕН ЕТАЖ !! ПАНОРАМЕН !!
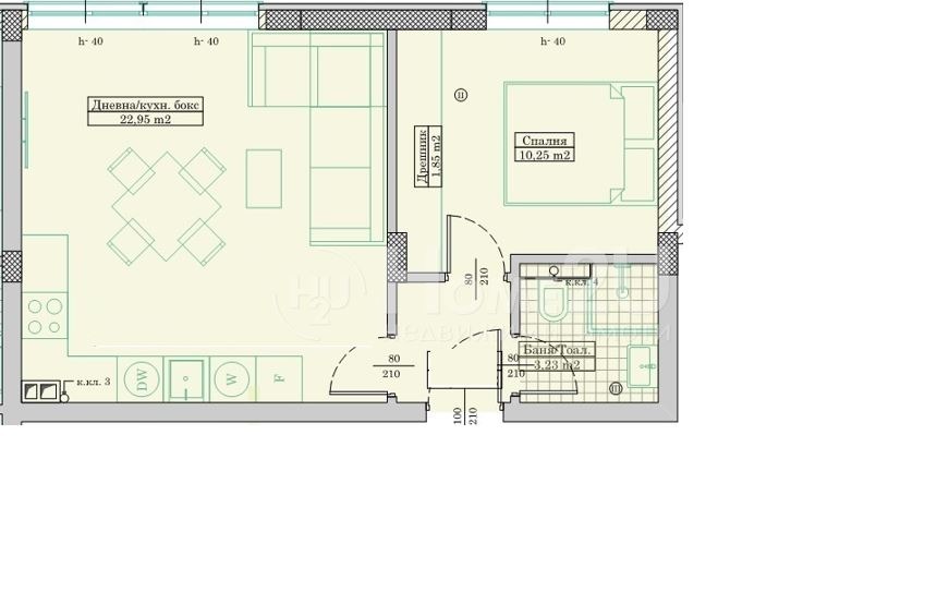
Представяме ви двустаен апартамент в новострояща се сграда на удобна локация с асфалтов достъп и близост до комуникации във варненския квартал- Възраждане. Разпределението на имота е : антре, спалня, всекидневна с кухненска част, баня с тоалет и дрешник. Сгрдата ще бъде изпълнена от сигурен инвеститор с множество завършени проекти. За изпълнението на сградата са предвидени последно поколение топло и хидро изолационни материали , най-нови технологии за постигане на минимални последващи разходи.Пространството около сградата изцяло се облагородява и озеленява.Проектирана е система за преработка и събиране на дъждовна вода за напояване на зелените площи.
За повече информация се обадете и цитирайте този код:128360







