🏢 2-стаен в сграда PUZZLE в кв. Сарафово
📍 Локация:
Новата част на Сарафово
в близост до:
🚌 спирка на градски транспорт
🛒 множество магазини и търговски обекти
🛣️ лесна връзка с основни пътни артерии
🏗️ Сграда:
Качествено строителство с модерна визия.
Старт юни 2025
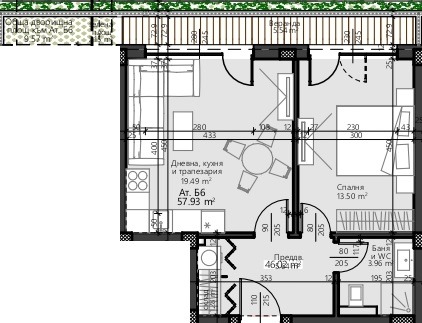
🏘️ Имоти:
2-стаен апартамент
64 кв.м
73 350 евро
В сградата се предлагат 1, 2 и 3-стайни апартаменти и паркоместа
💶 Цени и условия:
Цените започват от 55 400 евро.
📆 Предвидена е гъвкава схема за плащане, съобразена с етапите на строителство.
Виж всички обяви в cosmoproperty.bazar.bg или тук



