Новострояща се сграда в топ центъра на кв. Долно Езерово, гр. Бургас
📍 Локация:
Сградата се намира в идеалния център на квартал Долно Езерово.
🏢 Сграда:
Качествено тухлено строителство с модерна архитектура и елегантна фасада. Сградата е в етап пред АКТ 14 и е проектирана с внимание към детайла, включително асансьор и функционални жилищни разпределения.
🏠 Имот:
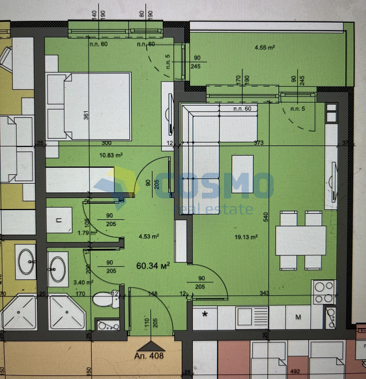
Състои се от всекидневна с кухненска част, спалня, коридор, баня с тоалетна и тераса
Предлагат се различни типове апартаменти, подходящи както за лично ползване, така и за инвестиция.
💰 Плащания:
Цените стартират от 58 500 евро, с възможност за гъвкава схема на разсрочено плащане, съобразена с индивидуалните възможности на клиента.
Виж всички обяви в cosmoproperty.bazar.bg или тук



