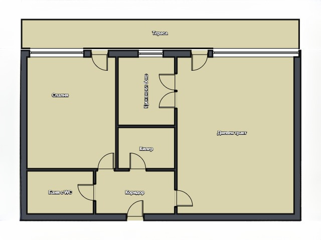
ЕРА Визия предлага за продажба двустаен, тухлен апартамент в район 'Гръцка махала', разположен на 3 етаж в триетажна сграда, с площ 78 кв.м. Имотът се състои от: коридор, дневен тракт с кухненски бокс, самостоятелна спалня, килер, баня с тоалет, тераса към всички стаи, ведно с прилежащо избено помещение (17 кв.м.). Към апартамента има и таванска стая (8 кв.м.), която се намира над него и би могла да се свърже със жилището. Имотът е саниран, с югоизточно изложение. Предлага се обзаведен и оборудван.
Подовата настилка в хола е естествен паркет, в спалнята и коридора е ламинат. Стените са боядисани с латекс. Дограмата на прозорците е ПВЦ (нова). Банята е с фаянс и теракот (оборудвана с моноблок, душ, мивка, огледало). В килера има изкарани изводи и може да се използва като перално помещение. Собствениците имат възможност да паркират във вътрешния двор на сградата.
Предложеният за продажба двустаен апартамент е ситуиран в тухлена кооперация (1960-1969г), в топ центъра на гр. Варна, в непосредствена близост до пешеходната зона на бул. 'Княз Борис' I. Подходящ е както за лично ползване, така и за отдаване под наем. Общите части са добре поддържани, с контрол на достъпа. Районът се отличава с множество архитектурни забележителности, банки, училища, детски градини и медицински центрове, парк с детска площадка, магазини...
ЕРА е независим кредитен посредник към БНБ и предоставя безплатна консултация и съдействие при финансиране на избрания от Вас имот... Код: 5301367







