Comfort Properties Group има удоволствието да Ви представи Двустаен Апартамент в Новострояща се жилищна сграда в квартал Люлин 6 .
Сградата е ситуирана на 15 минути пеш от Метростанция Западен Парк и Мега Мол . Мястото е комуникативно, с бърз достъп до ключови пътни артерии, позволяващи бърз и лесен достъп до всички точки на града. В непосредствена близост до спирки на градски транспорт, детски градини и училища, магазини и супермаркети.
Сградата разполага с един вход оборудван с асансьор, с 9 жилищни етажа и 1 сутеренен етаж с паркоместа и гаражи.
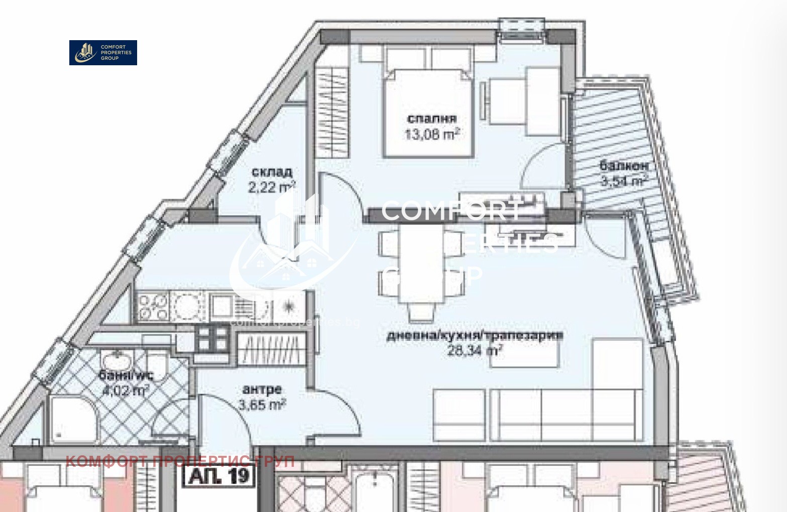
За продажба се предлагат: Двустаен Апартамент разположен на 4 етаж с площ 81.87 кв.м с общи части и 69.86 кв.м застроена площ
Разпределение:
Антре - 3.65 кв.м
Дневна с трапезария и кухненски бокс - 28.34 кв.м
Отделен Кухненски бокс
Спалня - 13.08 кв.м
Балкон - 3.40 кв.м
Баня с WC - 4.02 кв.м
Склад - 2.22 кв.м
Изложение - С/И
Има възможност за закупуване на Паркоместа на етаж сутерен на цени от 18 000 до 26 000 ,
Гараж със склад на етаж Партер на цена 39 000
Паркоместа на етаж партер-открити на цена 15 000
Етап на завършеност:
Апартаментите се продават завършени по БДС:
Стени и таван мазилка и замазка;
Под циментова замазка;
Ел. инсталации до конзола;
ВиК инсталации на тапа;
Направено окабеляване за интернет, телевизия, телефон;
Вид дограма: PVC;
Отопление: ТЕЦ; Ток-климатици
Блиндирана врата
Общи части в напълно завършен вид.
Технически характеристики:
Висок клас на строителството с най-модерни технологии и материали при изграждането, тухли Wienerberger, петкамерна дограма, асансьор висок клас. Общите части са изпълнени луксозно, а настилката е от естествен камък или гранит.
Етап на строителство:
Старт лято 2024
Сградата в момента е на етап изграждане груб строеж
Финиш Акт 16 / Разрешение за ползване очаква Зима 2026 г.- Пролет 2027г.
На близки разстояния е осигурено всичко необходимо, съпътстващо едно съвременно ежедневие.







