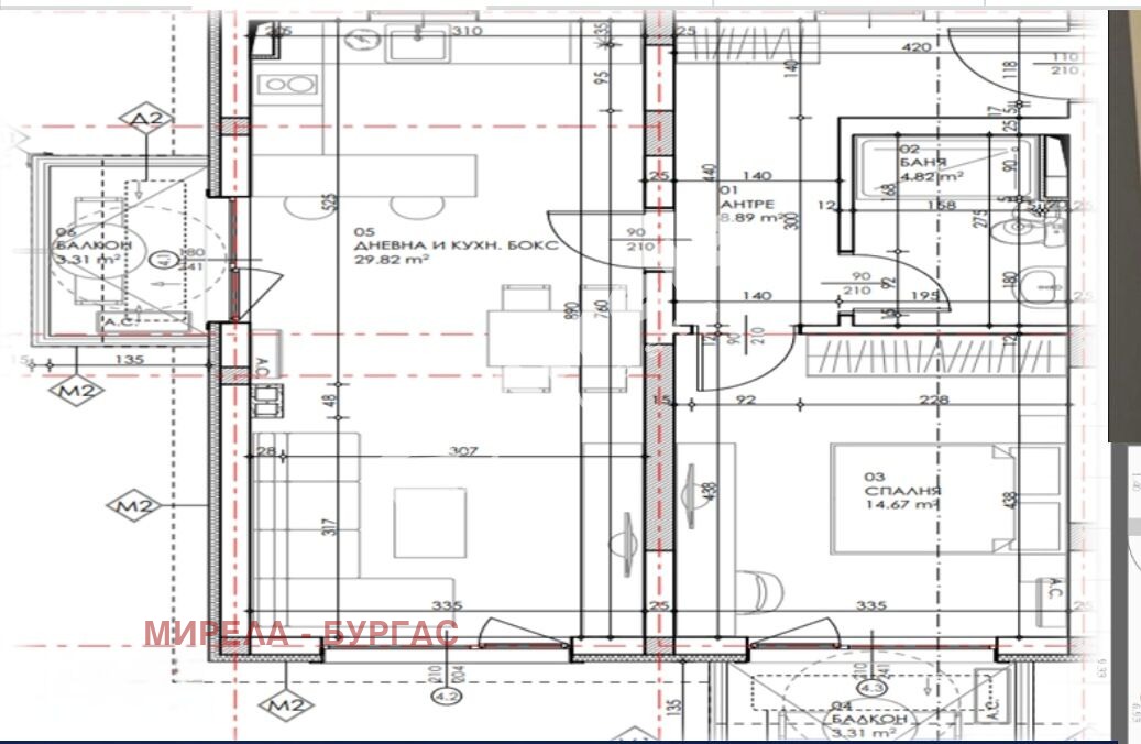
Апартаментът е разположен на трети жилищен етаж, с разпределение: антре, баня с тоалетна, една спалня с излаз на тераса, просторна всекидневна с кухня с излаз на тераса и склад 6,13 кв.м.
СГРАДАТА Е БЕЗ ТАКСА ПОДДРЪЖКА!
На разположение съм за допълнителна информация и организиране на огледи.
Първа линия без гледка море; Имотът има жилищен статут; Има надземно паркомясто; Сградата има асансьор; Продава се без обзавеждане; ЕТАП НА СТРОИТЕЛСТВО: завършено строителство (Акт 15); ОТОПЛЕНИЕ: климатик; Има 2 балкона/тераси; Предава се на шпакловка и замазка; Без такса поддръжка; Непреходен; Целогодишно ползване; ВИД СТРОИТЕЛСТВО: тухла; ЗАСТРОЕНА ПЛОЩ 77.90 кв.м; ПУСКОВ СРОК: 07.2025; ИЗЛОЖЕНИЕ: югозапад; СПАЛНИ: 1; БАНИ: 1; ДОГРАМА: Алуминиева
Виж всички обяви в yugproperty.bazar.bg или тук
        
       
         
         
         
         
         
         
         
             
             
             
             
             
             
            






