За повече информация обадете ни се на тел: 0882 817 469 или 052 813 703 и цитирайте референтния номер на имота: Vna 87261.
Отговорен брокер: Калина Иванова
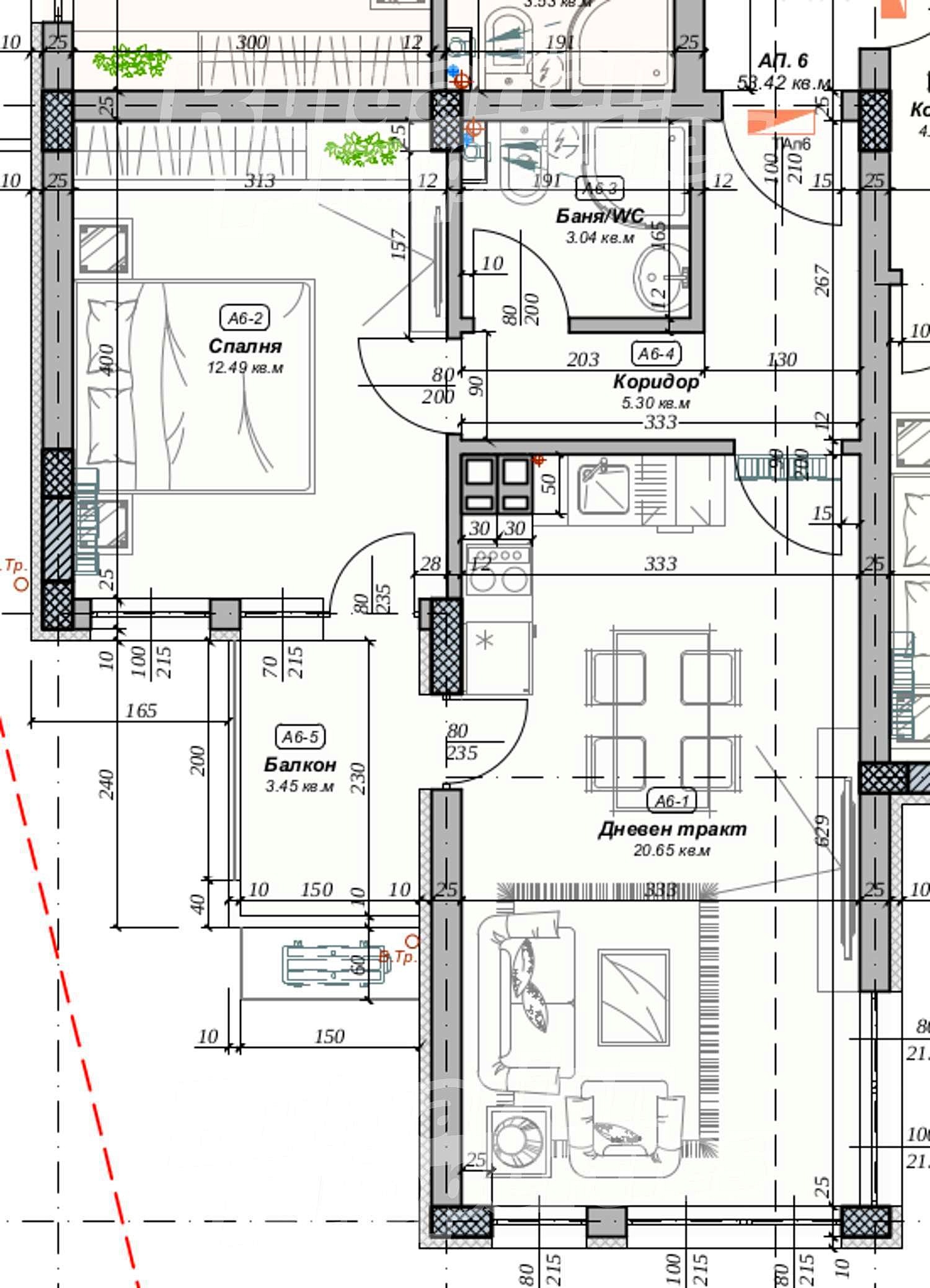
Предлагаме за продажба двустаен апартамент в новострояща се сграда, пред Акт 16, с отлично местоположение и функционално разпределение. Имотът се намира на втори жилищен етаж и разполага с панорамни прозорци, южно изложение и красива гледка към езерото.
Жилището е с площ 71.20 м2 (чиста площ 55.67 м2 плюс общи части 15.53 м2) разпределена между:
Входно антре
Просторна дневна с кухненски кът
Спалня
Тераса с излаз от двете стаи
Баня с тоалетна
Изба, включена в цената.
Апартаментът се продава завършен по БДС, със следните параметри и технически характеристики:
Машинна гипсова мазилка по стени и тавани
Панорамна шесткамерна PVC дограма с троен стъклопакет немски профил
Балкони с хидроизолация, замазка с наклон и настилка от мразоустойчив гранитогрес
Водопроводна инсталация с полипропиленови тръби PN16/PN20 до тапа
Монтирани водомери с възможност за дистанционно отчитане
Канализация от PVC тръби до тапи
Механична вентилация на мокрите помещения ел.захранване подготвено
Коминни тела с възможност за индивидуална аспирация на кухненски уреди
Предлага се възможност за закупуване на надземно паркомясто или подземен гараж в сградата. Общите части ще бъдат завършени с висококачествени материали, сградата е с модерен дизайн и отлична топло- и шумоизолация.
Имотът е подходящ както за живеене, така и за инвестиция благодарение на локацията, гледката, новото строителство и удобните параметри.
Оглед на имота
Можем да организираме оглед на имота спрямо нашия график и възможностите за достъп до него. Заявете вашето желание за оглед, като се свържете с отговорния за офертата брокер по имейл или телефон.
Резервация на имота
Имотът може да бъде резервиран и свален от продажба със заплащане на депозит, след което се прекратява провеждането на огледи с други купувачи и започва подготовка на документите за сключване на предварителен и окончателен договор. Свържете се с отговорния брокер за подробна информация относно процедурата на покупка и начините за плащане.
Жилищен кредит
Ние си партнираме с водещите български банки и можем да ви свържем с техните консултанти за информация и кандидатстване за кредит.
...







