❗ Революшън Естейт Ви представя двустаен апартамент в затворен жилищен комплекс на етап СТРОЕЖ в ж.к. Манастирски ливади - изток. ❗
🏡 Локализиран е в най-южната част на квартала, с бърз достъп до Околовръстен път. Имотът е част от затворен зелен комплекс с контролиран достъп и две нива подземни паркоместа.
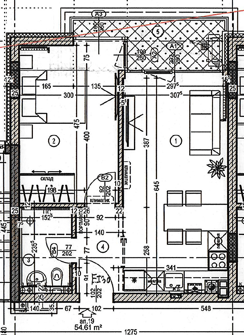
🔷 Имотът е разположен на 4-ти етаж от общо 6.
🔷 Площ: РЗП 65 кв.м. ЗП 54.61 кв.м.
🔷 Изложение: Изток.
🔷 Разпределение: входно антре, хол с кухненски бокс, спалня, баня с тоалетна, тераса и склад.
🔷 Отопление: ток.
🔷 Степен на завършеност: В СТРОЕЖ.
🔷 Очаквано завършване: 2027г,
📞 За повече информация не се колебайте да се свържете с нас и да цитирате референтен номер: ID: 2091316.







