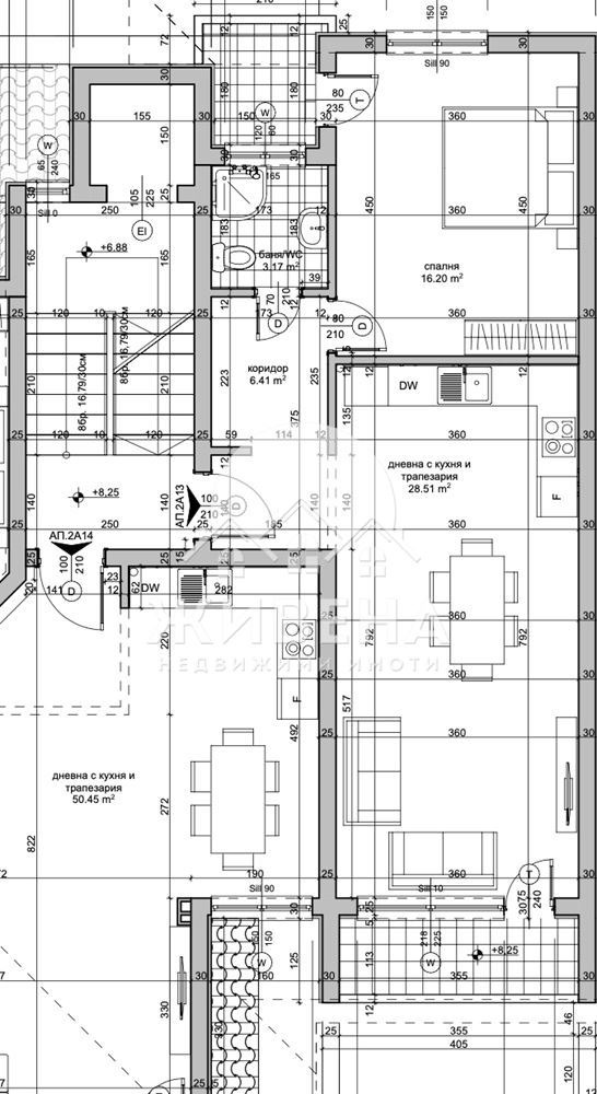
Агенция Живена предлага за продажба 2-стаен апартамент, с гледка към морето. Апартаментът е с обща площ - 79.44 кв.м, разположен на 4-ти етаж в 5-етажна сграда с Акт 16, кв. Виница, град Варна. Разпределен е по следния начин: антре, просторна дневна с кухня (28.51 кв.м) с югоизточно изложение, спалня (16.20 кв.м) на северозапад, баня с тоалетна, балкон. Жилището се предлага в завършено състояние - До ключ: шпакловани и боядисани стени, подови настилки от качествен ламинат и гранитогрес, с поставени ключове и контакти, облицована баня с вградена структура и окачена тоалетна чиния Grohe, изводи за климатици, PVC дограма, плътни интериорни врати - Variodor, масивна блиндирана входна врата Haska. Сградата е разположена в луксозен жилищен комплекс със съвременен дизайн, отлично изпълнени общи части и безшумен испански асансьор. Намира се на 6-7 минути пешеходно разстояние от автобусна спирка и централния булевард на кв. Виница Княз Борис III , на 3 км от к.к. Константин и Елена и най-близкия плаж. В комплекса предлагаме различен тип апартаменти - с една, две или три спални. Всеки апартамент предлага удобства като интелигентна електрическа инсталация, високи тавани, шумоизолация, access point и система за пречистване на водата. Има възможност за наемане на паркомясто. Агенция ЖИВЕНА извършва необходимите проверки на имота, който сте избрали, организира всички етапи на сделката до нейното финализиране. Оказваме съдействие за отпускане на банков кредит. Оферта 7284







