Unique Estates предлага светъл и функционален двустаен апартамент, разположен в тихата и добре развита част на кв. Манастирски ливади изток. Имотът се намира в модерна сграда с дизайнерски общи части и контролиран достъп, в близост до бул. България, търговски центрове и разнообразен градски транспорт.
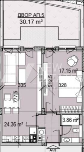
Жилището включва дневна с кухненски бокс и трапезария, самостоятелна спалня, баня с тоалетна и излаз към собствен двор с площ от 30 кв.м. Дворът е бонус към апартамента, което го прави още по-привлекателен за покупка. Пространството е предадено на шпакловка и замазка, което дава възможност за довършване по индивидуален вкус и нужди. Подходящо е за обособяване на кът за отдих, озеленяване или домашен офис на открито.
Антре, днвена с кухненски бокс и трапезария, спалня, баня с тоалетна, двор. Ref. ID:26331







